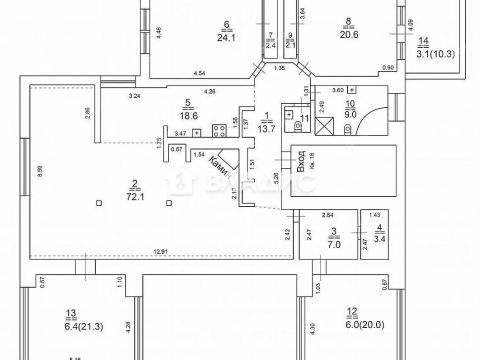
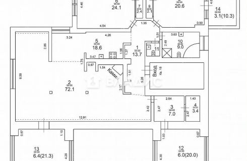
Код объекта: 2144352.🏡 Продается эксклюзивный пентхаус, занимающий последний этаж 6-этажного жилого дома № 29 на ул. Минина 1999 года постройки. Исторический центр, в близости прогулочная Верхневолжская набережная, Кремль и Александровский сад, престижные учебные заведения, лучшие рестораны, места культурного и туристического досуга «Столицы закатов». 🏡 По документам: Один взрослый собственник больше пяти лет в собственности. Свободная продажа! 🚘 - Площадь и планировка: общая площадь квартиры составляет 174,7 кв. м, из которых 98,2 кв. м — жилая площадь. Три изолированные комнаты (24,1 + 20,6 + 53,5 кв. м) идеально подойдут для семьи с детьми. Высокие потолки (3 м) создают дополнительное ощущение простора.Также есть две остекленные террасы площадью 21,3 + 20 кв. м. и открытого балкона площадью 10.3 кв.м. Фактическая площадь - 220 м2. Высота потолков - до 3х метров.Как и в большинстве малоэтажных домов исторического центра лифт в доме отсутствует. 🏘️ - Ремонт: В квартире выполнен стильный ремонт с использованием современных технических решений и отделочных материалов, включая систему кондиционирования на базе Mitsubishi Premium Inverter, отопление Loten, остекление Velux и Rehau, теплые полы, светодиодное освещение, бесшовное напольное покрытие из натурального дуба и кварц винила (для удобного запуска робота-пылесоса), вертикальные поверхности из натурального камня, керамогранита и фактурной штукатурки. 🎨 - Дополнительные удобства: При строительстве дома в гостиной был спроектирован натуральный камин с вертикальной системой открытия и прекрасной тягой, который выступает дополнительным источником отопления в межсезонье, а также дарит массу удовольствия зимними вечерами.Во всех помещениях, включая ванную комнату, есть остекление, что дает большое количество естественного света. Отсутствие близкорасположенных окон соседних домов позволяет не закрывать шторами панорамные виды. Объемное остекление мастер-спальни с выходом на просторный (10 м2) неостекленный балкон позволяет в летнее время года наслаждаться красочными закатами, лежа в кровати. На балконе есть возможность размещать безопасный гриль, летние шезлонги, украшать живую новогоднюю елку, предусмотрено освещение и розетки. Также в квартире две закрытые отапливаемые панорамные террасы (20 и 21,3 м2) с обзором 270’, используемые в качестве зоны отдыха/чаепития и студии для творчества/живописи. На одной из террас функционирует круглогодичный зимний сад. 🔧 Эта квартира — идеальное решение для тех, кто ценит комфорт и удобство. Не упустите возможность стать владельцем прекрасного жилья в отличном районе! Позвоните нам прямо сейчас, чтобы узнать больше и записаться на просмотр. Мы проведем безопасную сделку и юридическую поддержку нашим клиентам. Поможем одобрить ипотеку с сниженной ставкой. 🏡
Продажа 3-комнатной квартиры на ул. Минина, д. 29Нижегородский район, Нижний Новгород
47 000 000 руб.
| № | 2972742 |
|---|---|
| Район | Нижегородский |
| Адрес | ул. Минина, д. 29 |
| Комнат | 3 комнаты |
| Площадь | 174,7 / 98,2 / 18,6 |
| Этаж / этажность | 6 / 6 |
| Год постройки | 1999 |
| Материал стен | кирпич |
| Высота потолков | 3 м |
Контакты:
Федоров Владимир Витальевич
+7-906-615-
Подробное описание:
Тип жилья
другой
Тип комнат
раздельные
Ремонт
дизайнерский проект
Санузел
совмещенный
Балкон
есть
Мусоропровод
нет
Наличие охраны
нет
Ипотека
да
Дом 29 на ул. Минина
| Район | Нижегородский район |
|---|---|
| Адрес | ул. Минина, д. 29 |
| Год постройки | 1999 |
| Этажность | 6 |
| Материал стен | кирпич |
| Высота потолков | 3,1 м (средняя) |
| Средняя цена за м2 | 224 373 руб. |
| Подъездов | 3 |
| Квартир | 30 |
| Школа по прописке | Гимназия №13 |
| ДУК и ТСЖ | Уют |
Почта
Почта России261м
Почта России775м
Магазины
ВкусВилл69м
КуулКлевер МясновЪ Отдохни69м
Spar Express87м
Бристоль112м
У Палыча265м
Школы
Гимназия № 13452м
Гимназия № 13463м
Средняя школа № 186950м
Лицей № 8 им. академика Е.К. Федорова960м
Медицина
Поликлиника479м
Городская поликлиника № 21771м
Поликлиника № 7979м
Поликлиника № 7979м
Детские сады
Детский сад № 29206м
Детский сад № 120565м
Детский сад № 120587м
Оленёнок688м
Детский сад № 120721м
Другие калькуляторы
Оценка своих возможностей
Оцените, квартиру какой стоимости вы можете купить
Калькулятор рефинансирования
Оцените, выгодно ли рефинансировать ипотеку
Калькулятор досрочного погашения
Посчитайте экономию при досрочном погашении кредита
Продажа 3-комнатной квартиры на ул. Минина, д. 29


























































