Продаётся просторная трехкомнатная квартира, площадью 79.5 квадратных метров на пятом этаже современного восемнадцатиэтажного монолитного дома 2012 года постройки, расположенного по адресу: город Нижний Новгород, микрорайон Гордеевский, улица Тонкинская, дом 14а.
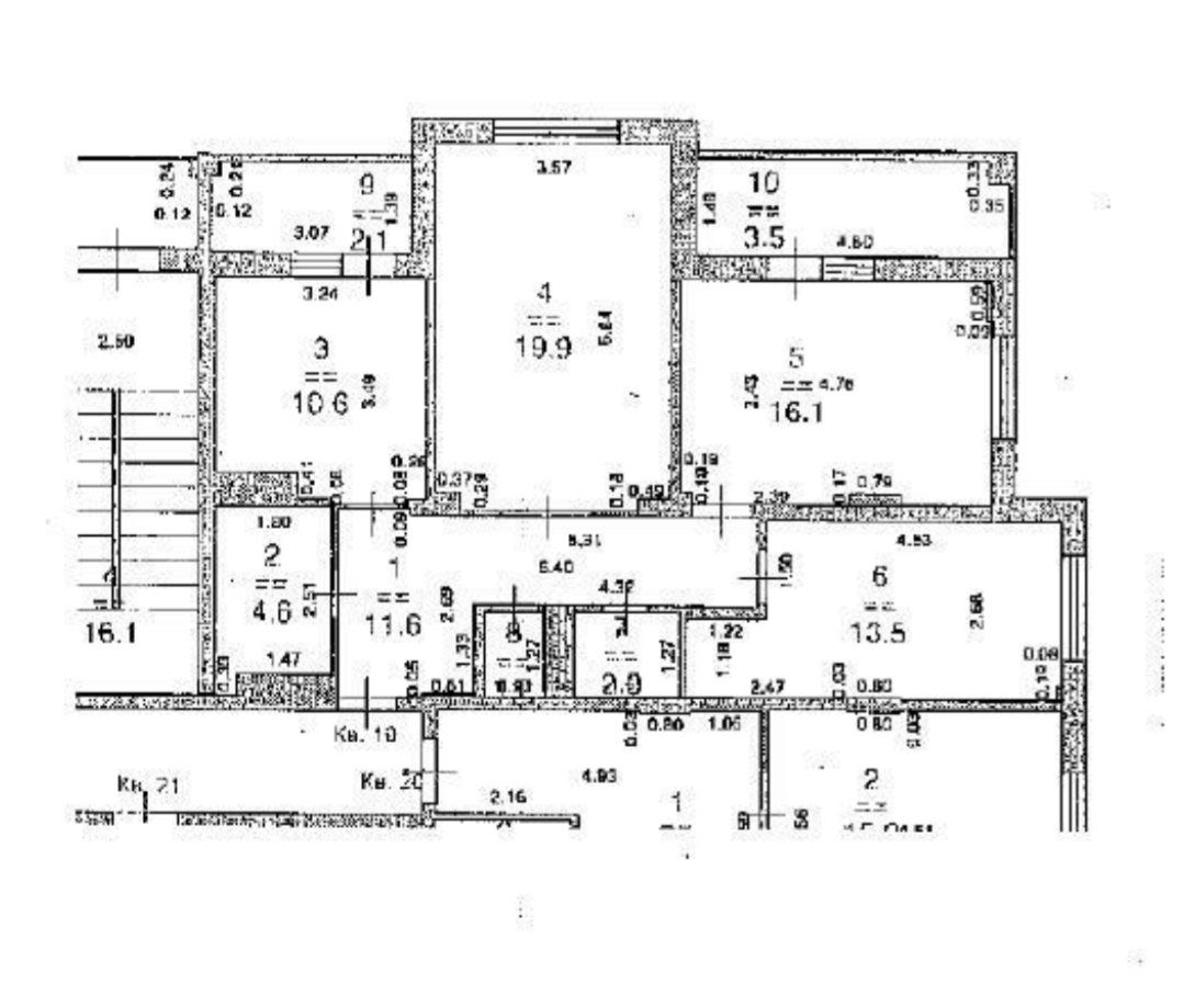
Планировка: кухня - площадью 10,6 кв.м. с выходом на лоджию, гостиная (19,9 кв.м.), спальня (16,1 кв.м. с окном и выходом на балкон), детская (13,5 кв.м.). Все комнаты изолированы.
В квартире имеется балкон и лоджия с видом во двор, где расположены детская и спортивная площадки, одна из которых после капитального благоустройства.
Также в квартире предусмотрено два санузла - совмещенный и отдельный (используется как помещение хозяйственного назначения - для стирки, сушки и глажки белья, а также хранения мелкой бытовой техники).
В подъезде - домофон и кодовый замок. Площадка, на которой расположена квартира, также закрыта дверью (тамбур). Для удобства хранения сезонных вещей предусмотрена общая кладовая возле выхода на лестницу (для каждой квартиры, расположенной на данной площадке - отдельный стеллаж).
Расположение дома позволяет быстро добраться до ближайших станций метро: «Канавинская» в 9 минутах пешей прогулки, «Бурнаковская» и «Московская» находятся чуть дальше, примерно в 20-22 минутах ходьбы.
Инфраструктура: рядом с домом находятся две школы, 4 детских сада, торговый центр Рио, гипермаркет Лента и фитнес-клуб "Фитнес-Хаус", а также детская школа народных танцев, шахматная школа и две библиотеки.
Поблизости расположены супермаркеты и магазины, такие как "Пятёрочка", "Магнит", "Наш".
У нас в семье два автомобиля и всегда находится место для парковки.
Квартира в собственности с момента постройки дома.
Ограничений, обременений и ипотеки нет, чистая продажа от собственников.
Агентов и риелторов без клиентов прошу не беспокоить.
Продажа 3-комнатной квартиры на ул. Тонкинская, д. 14аКанавинский район, Нижний Новгород
16 200 000 руб.
| № | 2970201 |
|---|---|
| Район | Канавинский |
| Адрес | ул. Тонкинская, д. 14а |
| Комнат | 3 комнаты |
| Площадь | 79,5 / 49,5 / 10,6 |
| Этаж / этажность | 5 / 18 |
| Год постройки | 2012 |
| Материал стен | блок+утеплитель |
| Высота потолков | 2,8 м |
Контакты:
Дарья
+7-906-556-
Подробное описание:
Тип жилья
другой
Тип комнат
раздельные
Ремонт
евроремонт
Санузел
совмещенный
Балкон
есть
Лоджия
есть
Лифт
пассажирский, грузовой
Телефон
есть
Интернет
есть
Мебель в комнатах
есть
Мебель на кухне
есть
Кухонная плита
электрическая
Горячая вода
центральное водоснабжение
Парковка
во дворе
Торг уместен
да
Ипотека
да
Дом 14а на ул. Тонкинская
| Район | Канавинский район |
|---|---|
| Адрес | ул. Тонкинская, д. 14а |
| Год постройки | 2012 |
| Этажность | 18 |
| Материал стен | блок |
| Высота потолков | 2,8 м (средняя) |
| Средняя цена за м2 | 184 117 руб. |
| Подъездов | 3 |
| Квартир | 289 |
| Школа по прописке | Школа №121 |
Почта
Почта России191м
Почта России434м
Магазины
Пятерочкав здании
Моя узолав здании
Бристоль103м
Наш137м
Бристоль191м
Школы
Школа № 121294м
Школа № 51419м
Школа № 21763м
Медицина
Детская поликлиника № 19366м
Поликлиника № 3536м
Кабинет врача общей практики650м
Поликлиника № 2722м
Поликлиника № 2911м
Детские сады
Детский сад № 53279м
Детский сад № 411317м
Детский сад № 51467м
Детский сад № 115646м
Детский сад № 476656м
Другие калькуляторы
Оценка своих возможностей
Оцените, квартиру какой стоимости вы можете купить
Калькулятор рефинансирования
Оцените, выгодно ли рефинансировать ипотеку
Калькулятор досрочного погашения
Посчитайте экономию при досрочном погашении кредита
Продажа 3-комнатной квартиры на ул. Тонкинская, д. 14а





































