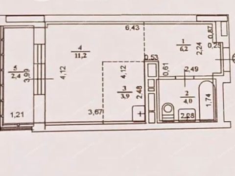
Продается уютная квартира-студия в ЖК Анкудиновский парк. Просторная кухня-гостиная - 15,1 кв.м., коридор - 6,2 кв.м., санузел - 4 кв.м.. площадь квартиры - 25,3 кв.м. + балкон 2,4 (общая 27,7 кв.м.). Кoмфоpтнaя плaниpoвка, высокий этaж, чтo обecпeчивaeт пpeкpаcный вид из oкнa.
Квартира светлая и теплая, не угловая.
В шаговой доступности магазины, аптеки, школа, дет сад.
Развитая инфраструктура, Бoтанический сад, Щeлкoвcкий xутop, детские и спортивные площадки, зоны отдыха, велосипедные дорожки.
Рядом ул, Мечтателей, Романтиков, Академика Сахарова, 60 летия Октября, Героев Донбасса.
Любая форма оплаты. Обеспечение комфортной и безопасной сделки, юридическое сопровождение. Звоните и пишите! Буду рад ответить на вопросы и провести показ.
Продажа квартиры-студии на ул. Русская, д. 19 (дер. Анкудиновка)Кстовский район, Нижегородская область
5 000 000 руб.
| № | 2968124 |
|---|---|
| Район | Кстовский |
| Адрес | деревня Анкудиновка, Русская улица, 19 |
| Комнат | студия |
| Площадь | 27,7 / 11,2 / 1 |
| Этаж / этажность | 19 / 23 |
| Год постройки | 2022 |
| Материал стен | панель |
| Высота потолков | 2,65 м |
Контакты:
Лукин Андрей Андреевич
+7-906-348-
Подробное описание:
Тип жилья
другой
Дом 19 на ул. Русская
| Деревня | Анкудиновка, Кстовский район |
|---|---|
| Адрес | ул. Русская, д. 19 |
| Год постройки | 2022 |
| Этажность | 23 |
| Материал стен | панель |
| Высота потолков | 2,65 м (средняя) |
| Подъездов | 1 |
| Квартир | 248 |
Магазины
Малинка816м
Чижик954м
Магнит994м
Другие калькуляторы
Оценка своих возможностей
Оцените, квартиру какой стоимости вы можете купить
Калькулятор рефинансирования
Оцените, выгодно ли рефинансировать ипотеку
Калькулятор досрочного погашения
Посчитайте экономию при досрочном погашении кредита
Продажа квартиры-студии на ул. Русская, д. 19 (дер. Анкудиновка)




















