Продаётся квартира-студия в новом Жилом Комплексе "Мёд". Канавинский район. Дом сдан!
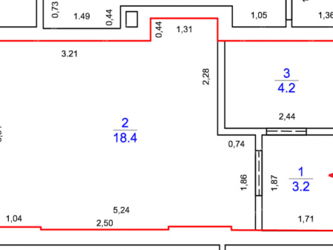
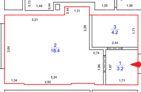
Общая площадь: 25,8 м² , Комната- 18,4 м² . Первый этаж современного 27-этажного монолитного дома, построенного и введённого в эксплуатацию декабрь 2025 года. Готовое пространство под чистовую отделку, совмещённый санузел, центральное отопление. Отличный выбор для тех, кто планирует провести небольшой косметический ремонт перед заселением.
Выбирая квартиру в нашем жилом комплексе, вы получаете доступ к удобным транспортным магистралям: Комсомольскому шоссе, проспекту Ленина и Молитовскому мосту. Район активно развивается, строятся новые современные жилые комплексы, что положительно влияет на стоимость недвижимости. Это идеальное сочетание комфорта и близости ко всей необходимой городской инфраструктуре.
Инвестируйте в будущее своего жилья уже сегодня — позвоните нам прямо сейчас и узнайте больше деталей о покупке вашей будущей квартиры. Рядом улицы: Украинская, Комсомольское шоссе, Искры, Журова, Обводная, Лейтенанта Шмидта, Дачная и Июльских дней Возможно, вы искали: Квартира в новом доме, квартира ЖК Мед, новый дом, купить квартиру студию, купить квартиру Украинская, Комсомольское шоссе, квартира для инвестиций, современная квартира, квартира без ремонта, дом с парковкой, квартира под аренду, дом для семьи.
Продажа квартиры-студии на ш. Комсомольское, д. 11Канавинский район, Нижний Новгород
5 390 000 руб.
| № | 2966850 |
|---|---|
| Район | Канавинский |
| Адрес | ш. Комсомольское, д. 11 |
| Комнат | студия |
| Площадь | 25,8 / 18,4 / 5 |
| Этаж / этажность | 1 / 27 |
| Год постройки | 2025 |
| Материал стен | блок+утеплитель |
| Высота потолков | 2,72 м |
Контакты:
Майя Валерьевна
+7-987-747-
Подробное описание:
Тип жилья
другой
Ремонт
требуется ремонт
Санузел
совмещенный
Кухонная плита
электрическая
Горячая вода
центральное водоснабжение
Парковка
во дворе
Торг уместен
да
Ипотека
да
Дом 11 на ш. Комсомольское
| Район | Канавинский район |
|---|---|
| Адрес | ш. Комсомольское, д. 11 |
| Год постройки | 2025 |
| Этажность | 27 |
| Материал стен | блок |
| Высота потолков | 2,72 м (средняя) |
| Средняя цена за м2 | 181 095 руб. |
| Подъездов | 1 |
| Квартир | 185 |
| Лифт | 1 пассажирский, 2 грузопассажирских |
Почта
Почта России839м
Почта России898м
Магазины
Чижик271м
Продуктовый магазин389м
Халяль436м
Халяль487м
Пятерочка528м
Школы
Школа № 97881м
Школа № 96919м
Медицина
Поликлиника № 10448м
Детские сады
Детский сад № 11676м
Другие калькуляторы
Оценка своих возможностей
Оцените, квартиру какой стоимости вы можете купить
Калькулятор рефинансирования
Оцените, выгодно ли рефинансировать ипотеку
Калькулятор досрочного погашения
Посчитайте экономию при досрочном погашении кредита
Продажа квартиры-студии на ш. Комсомольское, д. 11


































