Дача для большой семьи СНТ Дубки-2
Продажа дачи (рабочий посёлок Гидроторф, Дубки-2)Балахнинский муниципальный округ, Нижегородская область
999 000 руб.
| № | 2956874 |
|---|---|
| Район | Балахнинский муниципальный |
| Адрес | рабочий посёлок Гидроторф, Дубки-2 |
| Объект | дача |
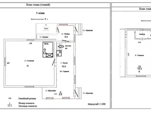
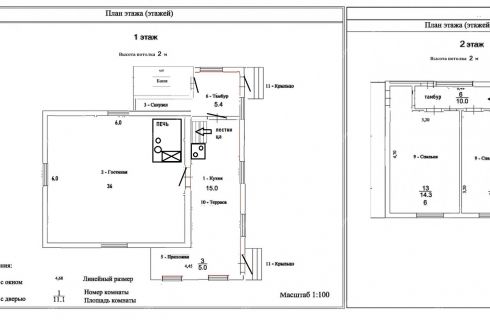
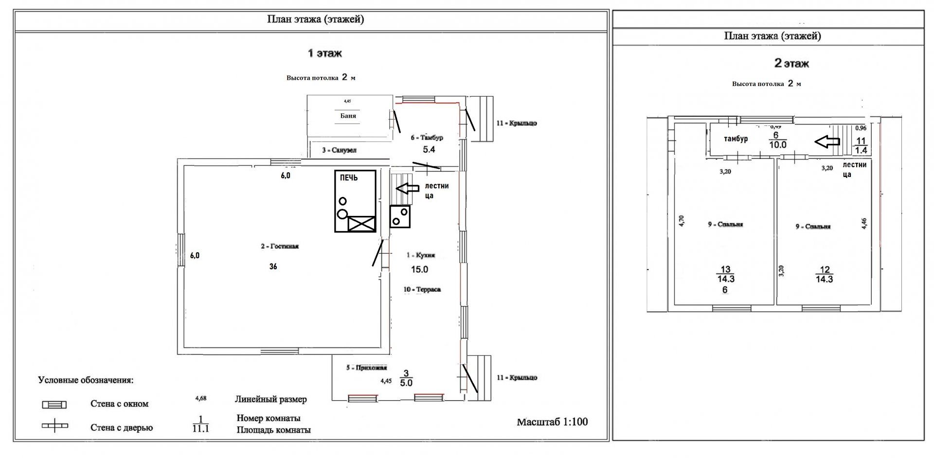
| Площадь дома | 78 м² |
| Площадь участка | 10 соток |
Контакты:
Геннадий
+7-950-623-
+7-910-103-
Подробное описание:
Электричество
есть
Газ
есть
Туалет
на улице
Душ
в доме
Баня / сауна
есть
Торг уместен
да
рабочий посёлок Гидроторф на карте
Другие калькуляторы
Оценка своих возможностей
Оцените, квартиру какой стоимости вы можете купить
Калькулятор рефинансирования
Оцените, выгодно ли рефинансировать ипотеку
Калькулятор досрочного погашения
Посчитайте экономию при досрочном погашении кредита












