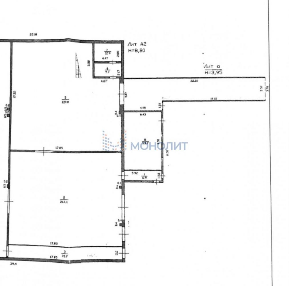
Производственная база в г. Бор, ул Республиканская. Состоит из двух производственных помещений, соединенных переходом: производственный цех 1817 кв.м. Производственная часть 1233 кв.м., высота 6,7 м., однообъемное, есть подкрановые пути, ровные бетонные полы. Офисный пристрой в двух этажах 392 кв.м. Электрические мощности 180 квт. Можно увеличить до 1 Мвт (цена вопроса 30 млн.) Коммуникации: своя газовая котельная, вода-центральная, канализация-локальная. Прилегающий земельный участок 0,27
Номер объекта: #41/1779154/11523
Продажа здания (город Бор, Республиканская улица, 37)городской округ Бор, Нижегородская область
80 000 000 руб.
| № | 2969300 |
|---|---|
| Район | городской округ Бор |
| Адрес | город Бор, Республиканская улица, 37 |
| Площадь | 2 484 м² |
| Этажность | 1 |
| Материал стен | Уточнить |
| Объект | отдельно стоящее здание |
| Назначение | складское, производственное |
Контакты:
Пяткина Елена
+7-920-034-
Подробное описание:
Дом д. 37 на ул. Республиканская
Продажа здания (город Бор, Республиканская улица, 37)



















