‼️ПРОДАЁТСЯ новый уютный одноэтажный дом 60 м² в семейную ипотеку — идеальный вариант для семьи с детьми.
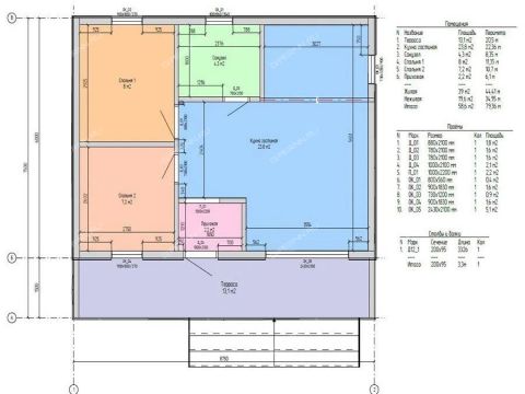
❤️Планировка: 2 отдельные спальни, светлая гостиная, санузел в доме.
❤️Участок 5 соток — достаточно места для детской площадки, мангальной зоны или небольшого огорода.
❤️Локация максимально удобна для семей: рядом администрация, детский сад, школа, магазин «Магнит» и аптека, остановка городского автобуса — всего в 4 минутах пешком от дома, легко добраться до центра без машины.
Условия покупки:
– Цена дома: 1,5 млн ₽❤️❤️❤️ (первоначальный взнос)
– Ипотека от Банка Дом.рф:
6 млн ₽ под 6,2% годовых по семейной ипотеке,
срок 30 лет, ежемесячный платеж 36780 рублей,
переплата 7020000 рублей зависит от срока погашения.
Помогу с одобрением, все расскажу!
‼️Свой дом за 36 000 руб/месяц
Продажа дома (деревня Афонино, Родниковая улица, 26/2)Кстовский район, Нижегородская область
7 500 000 руб.
| № | 2972162 |
|---|---|
| Район | Кстовский |
| Адрес | деревня Афонино, Родниковая улица, 26/2 |
| Объект | дом |
| Площадь | 72 / 62 / 10 |
| Площадь участка | 5 соток |
| Количество этажей | 1 |
| Материал стен | панель |
Контакты:
Сергей Николаевич
+7-952-783-
+7-952-471-
Подробное описание:
Интернет
есть
Отопление
есть
Электричество
есть
Водопровод
есть
Канализация
есть
Туалет
в доме
Ипотека
да
Дом д. 26/2 на ул. Родниковая
Другие калькуляторы
Оценка своих возможностей
Оцените, квартиру какой стоимости вы можете купить
Калькулятор рефинансирования
Оцените, выгодно ли рефинансировать ипотеку
Калькулятор досрочного погашения
Посчитайте экономию при досрочном погашении кредита
Продажа дома (деревня Афонино, Родниковая улица, 26/2)













