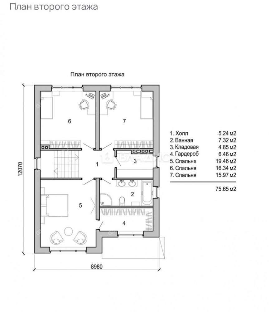
Код объекта: 1679276. Предложение для тех, кто хочет встретить новый год со своей семьей, в собственном новом доме!В продаже коттедж, расположенный по адресу: д. Ржавка, ул. Горная. Дом находится в 8 км от Нижнего Новгорода. Дорога до В.Печёр занимает 15 минут на автомобиле. В непосредственной близости возводится ЖК со всей необходимой инфраструктурой: детсады, школа, поликлиника, ФОК. Что придает особую привлекательность к данной локации.  Это идеальное место для тех, кто ценит загородную жизнь, при этом хочет находиться рядом с городом.Планировка дома:- 1 этаж: прихожая, холл, санузел, кладовая, кухня-гостиная, кладовая при кухне, гостевая комната. Есть выход из кухни-гостиной на террасу.- 2 этаж: холл, санузел, кладовая, гардероб, три спальни. Из окон открывается вид на зеленый массив и современные жилые дома, что придает больше эстетики. Площадь спален 19,46+19,46+16,34+15,97Характеристики дома:- Год постройки: 2025- Площадь дома: 154 м²Преимущества дома:Дом построен из керамических блоков. Дом будет сохранять тепло, что позволит экономить на коммунальных платежах зимой.Так же в доме комфортно находится летом.Земельный участок:- Площадь: 11,5 соток — ровный участок позволяет разместить гараж, детскую площадку, организовать зону для барбекю.Подходит под ипотеку. Звоните, с радостью отвечу на ваши вопросы, проведу показ дома
        Продажа дома (деревня Ржавка, Горная улица)Кстовский район, Нижегородская область
                        13 500 000 руб.                                            
                    | № | 2951847 | 
|---|---|
| Район | Кстовский | 
| Адрес | деревня Ржавка, Горная улица | 
| Объект | дом | 
| Площадь | 154 / 71,23 / 33,08 | 
| Площадь участка | 11,5 сотки | 
| Количество этажей | 2 | 
| Материал стен | кирпич | 
Контакты:
                
            Ерина Татьяна Геннадьевна        
                    
                +7-964-697-
Подробное описание:
                        Телефон                    
                    
                        нет                    
                
                        Интернет                    
                    
                        нет                    
                
                        Отопление                    
                    
                        есть                    
                
                        Электричество                    
                    
                        есть                    
                
                        Водопровод                    
                    
                        нет                    
                
                        Газ                    
                    
                        есть                    
                
                        Канализация                    
                    
                        нет                    
                
                        Наличие бани/сауны                    
                    
                        нет                    
                
                        Ипотека                    
                    
                        да                    
                деревня Ржавка на карте
        Другие калькуляторы
    
    
                Оценка своих возможностей                
        Оцените, квартиру какой стоимости вы можете купить
            
                Калькулятор рефинансирования                
        Оцените, выгодно ли рефинансировать ипотеку
            
                Калькулятор досрочного погашения                
        Посчитайте экономию при досрочном погашении кредита
            Продажа дома (деревня Ржавка, Горная улица)
                             
             
             
             
             
             
             
             
             
             
             
             
             
             
             
             
             
             
             
             
             
             
             
             
             
             
             
        






























