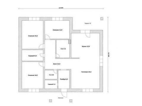
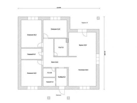
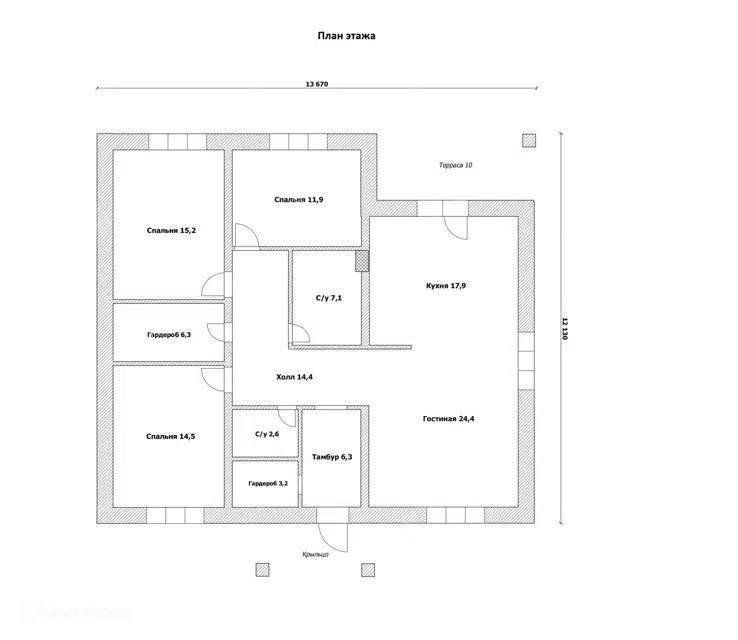
Арт. 114335963 Продается уютный дом на берегу Волги!Описание дома: • Керамический кирпич, одноэтажный, общей площадью 128,2 кв.м • Черновая отделка. Возможна организация ремонта "под ключ"• Просторная кухня-гостиная 17,9 кв.м, для семейных ужинов и встреч с друзьями• Четыре уютные спальни для комфортного отдыха, 14,6+14,6+15,3+23,4Высота потолков 3,15 Два санузла• Гараж для вашего автомобиля• Террасса 12,8 кв.м, для приятных вечеров на свежем воздухеОтопление газ Вода скважина Канализация септикЭл. 10 кв.т( по необходимости можно согласовать больше )
Земельный участок: 10 соток — идеальное пространство для создания собственного сада или зоны отдыха. Вид разрешенного использования участка- ЛПХКатегория земель- земли населенных пунктовЕсть в продаже земельные участки и другие проэкты домов с разным ценовым диапозономВозможно использование мат капиталла и семейной ипотеки на готовый дом.
Не упустите шанс стать обладателем этого замечательного дома! Звоните и записывайтесь на просмотр уже сегодня!
Продажа дома (рабочий посёлок Малое Козино)Балахнинский муниципальный округ, Нижегородская область
12 000 000 руб.
| № | 2955347 |
|---|---|
| Район | Балахнинский муниципальный |
| Адрес | рабочий посёлок Малое Козино |
| Объект | дом |
| Площадь | 124 / |
| Площадь участка | 10 соток |
| Количество этажей | 1 |
| Материал стен | кирпич |
Контакты:
Новикова Наталья
+7-920-007-
Подробное описание:
Отопление
есть
Водопровод
есть
Газ
есть
Канализация
есть
рабочий посёлок Малое Козино на карте
Другие калькуляторы
Оценка своих возможностей
Оцените, квартиру какой стоимости вы можете купить
Калькулятор рефинансирования
Оцените, выгодно ли рефинансировать ипотеку
Калькулятор досрочного погашения
Посчитайте экономию при досрочном погашении кредита
Продажа дома (рабочий посёлок Малое Козино)






















