Предлагаю Вашему вниманию КАЧЕСТВЕННЫЙ, СОВРЕМЕННЫЙ коттедж ПРЕМИУМ КЛАССА в тихом спокойном месте Борского района д.Борисовка в 10 минутах от Нижнего Новгорода.
Площадь коттеджа 150 кв.м (с учетом террасы).
Участок 10 соток.
Коттедж 2024 года постройки. Прошел все усадки.
ПОЛНОСТЬЮ ГОТОВ!!!
Коттедж строился по индивидуальному проекту с использованием лучших, дорогостоящих материалов высокого качества! Каждый этап строительства проходил строгий контроль согласно проекту. Про используемые материалы и технологии расскажу при личной встрече.
Коробка дома выполнена из экологического керамического блока, сделано утепление минватой 100 мм, облицовка из баварской кладки из керамического кирпича.
Фундамент свайно-ростверковый (сваи каждые 1,25м).
Мягкая утепленная кровля, сделана водосточная система.
Межкомнатные перегородки из керамического блока.
Окна панорамные, за счет чего в доме много естественного света. Высокие потолки 3 метра.
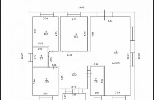
Планировка: 3 большие комнаты по 15,18,14 кв. м, просторная кухня-гостиная 52,1 кв.м. с выходом на большую готовую террасу (21 кв.м), с/у, продуманная просторная прихожая 23,3 кв.м, котельная.
Сделано презентабельное крыльцо со ступенями, качественная дверь с терморазрывом.
Все коммуникации заведены в дом.
Вода: скважина (установлена насосная станция), Электричество 15 кВт, Газ, Канализация: двойной септик с переливом.
Коттедж продается в черновой отделке, в стоимость войдет качественная штукатурка стен и механизированная заливка пола под финишный ремонт.
Участок ровный, сухой, высокий, прямоугольной правильной формы, расположен на ЛУЧШЕЙ тихой улице. Вокруг тишина, природа и пение птиц. За домом небольшая березовая роща, строительства других домов не будет.
Коттедж находится в 10 минутах от Нижнего Новгорода, в 20 минутах от центра г.Бор.
Подходит под любые виды расчетов, в том числе под семейную и it ипотеку 6%.
Если коттедж понравился, но не реализована Ваша недвижимость - обсудим.
Звоните, договоримся о просмотре на любое удобное для Вас время и день!
Продажа коттеджа (деревня Борисовка, улица Луговая)городской округ Бор, Нижегородская область
13 990 000 руб.
| № | 2971846 |
|---|---|
| Район | городской округ Бор |
| Адрес | деревня Борисовка, улица Луговая |
| Объект | коттедж |
| Площадь | 150 / 50 / 52,1 |
| Площадь участка | 10 соток |
| Материал стен | кирпич |
Контакты:
К. Татьяна
+7-950-629-
Подробное описание:
улица Луговая на карте
Другие калькуляторы
Оценка своих возможностей
Оцените, квартиру какой стоимости вы можете купить
Калькулятор рефинансирования
Оцените, выгодно ли рефинансировать ипотеку
Калькулятор досрочного погашения
Посчитайте экономию при досрочном погашении кредита


































