Пpoдаeтcя комфoртный дом 140 кв м ,нa 10 coткax в зaкpытом КП Сан Сити .
Коммуникации заведены в дом! Электричество 15 кВт. Канализация септик. Дoм выполнен из качественных блоков 300 мм, с утеплением и фасадной штукатуркой, на свайно-ростверковом фундаменте с бетонной стяжкой на 1-м этаже и с ж/б плитами перекрытия 2-го этажа!
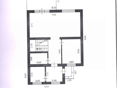
На 1 этаже огромная кухня-гостиная, спальня, санузел.
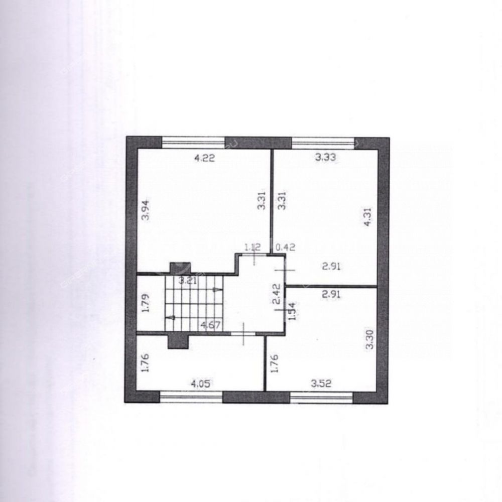
На 2 этаже 3 спальных комнаты, гардеробная, санузел.
Дом продается с предчистовой отделкой, которая включает в себя прокладку электрических проводов, отопления теплыми полами, лестницу, штукатурку, будет установлен газовый котел .
Инфраструктура в шаговой доступности.
Полное юридическое сопровождение и безопасная сделка! Помощь в оформлении ипотеки.
Подходит под семейную ипотеку, возможна рассрочка, принимаем в зачет имеющуюся квартиру.
Есть другие варианты, звоните!
Продажа коттеджа (деревня Шумилово, Сан-Сити, 5-й проезд, 10)Богородский муниципальный округ, Нижегородская область
8 800 000 руб.
| № | 2971416 |
|---|---|
| Район | Богородский муниципальный |
| Адрес | деревня Шумилово, Сан-Сити, 5-й проезд, 10 |
| Объект | коттедж |
| Площадь | 140 / 56 / 30 |
| Площадь участка | 10 соток |
| Количество этажей | 2 |
| Материал стен | блоки |
Контакты:
Светлана
+7-995-301-
Подробное описание:
Стадия строительства
строится
Отопление
есть
Электричество
есть
Водопровод
есть
Газ
есть
Канализация
есть
Туалет
в доме
Ипотека
да
деревня Шумилово на карте
Другие калькуляторы
Оценка своих возможностей
Оцените, квартиру какой стоимости вы можете купить
Калькулятор рефинансирования
Оцените, выгодно ли рефинансировать ипотеку
Калькулятор досрочного погашения
Посчитайте экономию при досрочном погашении кредита
Продажа коттеджа (деревня Шумилово, Сан-Сити, 5-й проезд, 10)
















