Арт. 119224254
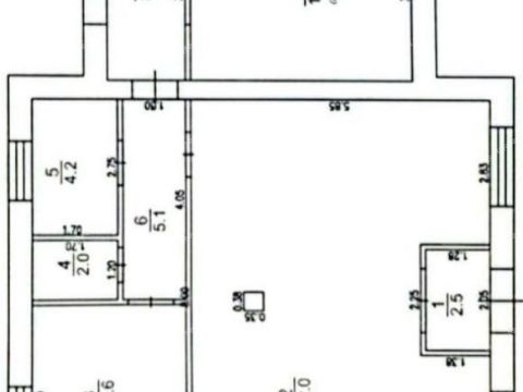
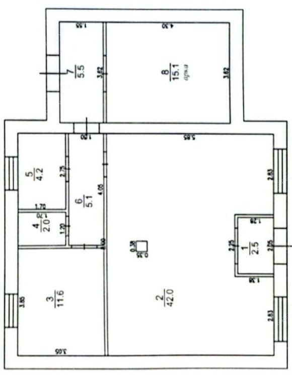
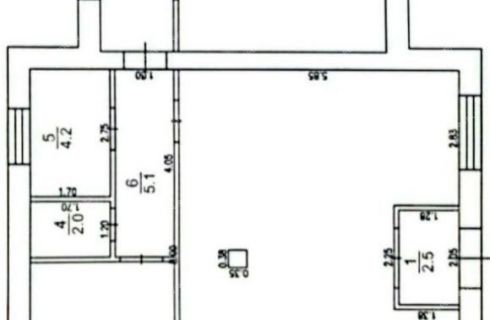
Продается 1-этажное здание на земельном участке в собственности - 7 соток, земля также переведена под коммерческую - вид разрешённого использования "магазины" Зал 50 м2 , склад 10 м2 , подсобные помещения и санузел 20 м2 .
Перед зданием парковка на 25 машиномест, за зданием территория, огороженная забором около 1 сотки.
Расположено на въезде в два коттеджных посёлка "Крутая" и "Фроловское", большой трафик, а рядом с помещением расположено озеро, летом очень много народу на пляже.
Коммуникации - газ, вода - скважина, канализация - закрытая ёмкость 4м2 , эл. мощность - 15кВт., интернет оптоволокно, охранная сигнализация, договор охраны.
Здание построено из керамического кирпича, имеется две входные группы
Назначение: торговые площади (магазины у дома)





















