Продается двухэтажное здание, общей площадью 198,2 кв.м, состоящее из трех помещений с отдельными входами, по адресу: г. Нижний Новгород, ул. Дубравная, д. 18А.
Здание можно использовать в качестве складского помещения с офисом, в качестве ремонтного бокса или станции технического обслуживания, а также для размещения небольшого производства.
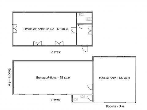
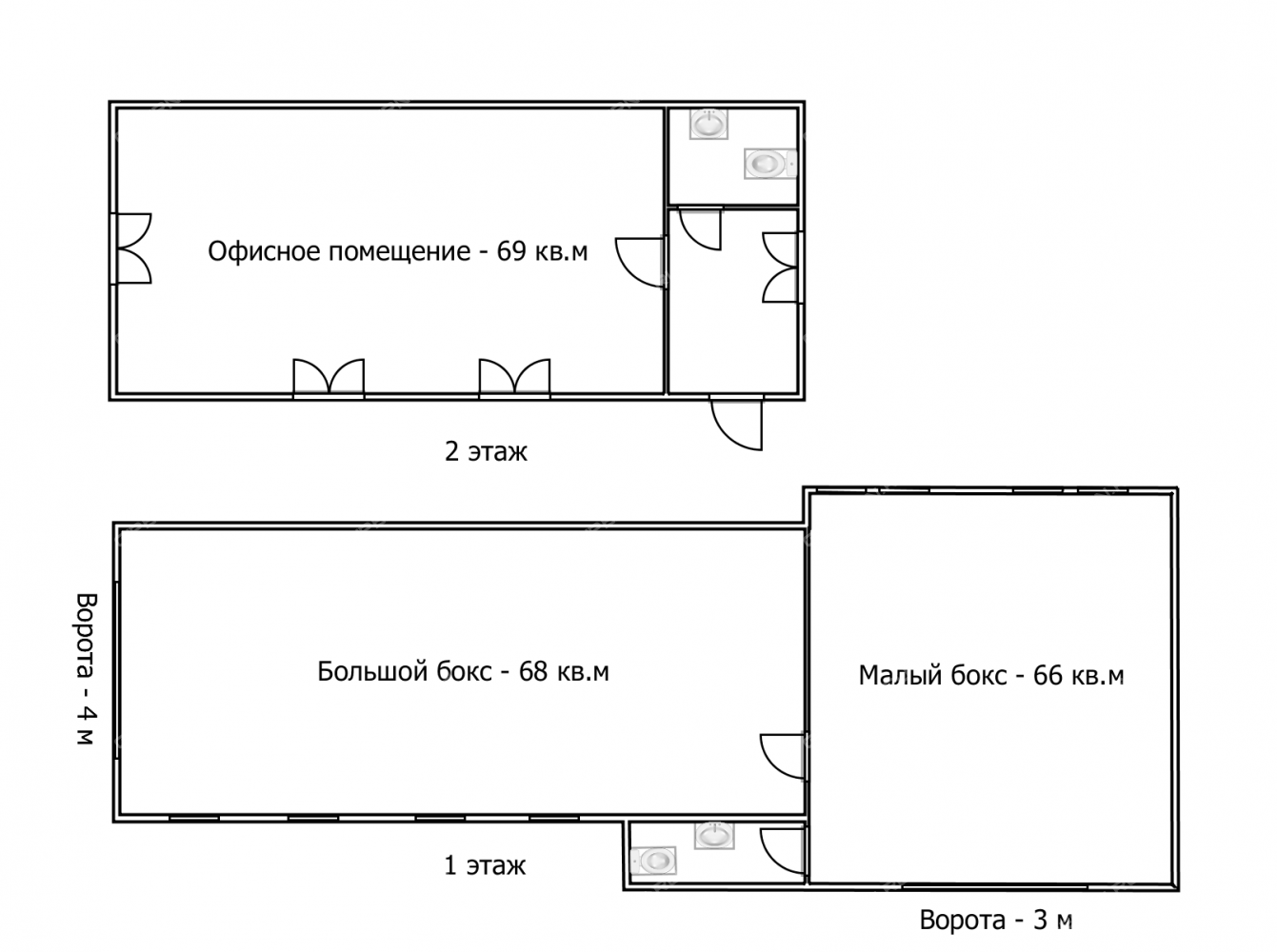
Здание кирпичное, построено в 1996 году, обновлено 2024 г, состоит из трех помещений с отдельными входами с улицы. На 1 этаже - 2 гаражных бокса с окнами. Большой бокс площадью 68 кв.м имеет въезд и ворота высотой 4 м, малый бокс площадью 66 кв.м имеет въезд и ворота высотой 3 м. Малый бокс оборудован санузлом. В большом боксе есть подвальное помещение аналогичной площади высотой 2 м с доступом через 3 люка. Гаражные боксы первого этажа соединены между собой дверью, которую при необходимости можно заблокировать и оставить только отдельные уличные входы.
На 2 этаже здания - офисное помещение площадью 69 кв.м с собственным санузлом.
Здание оборудовано необходимыми коммуникациями:
- видеонаблюдение - три камеры по внешнему периметру;
- отопление - электрический котел (газоснабжение - в процессе подключение, получены технические условия);
- электричество центральное (мощность - 15 кВт, напряжение: 220 В, 380 В);
- водоснабжение - скважина;
- канализация - выгребная яма.
Земельный участок 293 кв.м под зданием арендуется у Министерства имущественных и земельных отношений Нижегородской области.
Транспортная развязка и подъездные пути:
Здание расположено в 1 минуте (170 м) от въезда в город со стороны г. Балахна, около железнодорожного переезда и станции "Дубравная". Подъездная дорога со стороны ул. Ужгородская грунтовая (всего 170 м), зимой очищается.
В данный момент здание сдается двум арендаторам под склад и бытовые услуги.
Собственник - физическое лицо. Звоните и записывайтесь на просмотр.
Назначение: офисы, склады (склады теплые, склады холодные, холодильники, овощехранилища, фармацевтические склады, алкогольные склады)











































