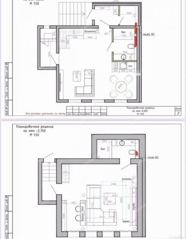
Отдельно стоящее здание с земельным участком. Площадь здания 77 м2 (по назначению - жилой дом), этажность: 1, цоколь, мансарда, земельный участок в собственности- 241 м2 (назначение - под МКД). Реконструкция 2020 года, по факту заново построенный дом. Газ заведен в дом
Назначение: офисы, недвижимость под гостиничный бизнес (мини-отели)












