Архитектурно-градостроительный облик будущего туркомплекса на Печерских песках скорректировали в Нижнем Новгороде. Обновления затронули первую очередь строительства, говорится в приказе регионального Минграда от 29 января. Туристическая инфраструктура разместится между яхт-клубами «Фрегат» и «Лето».
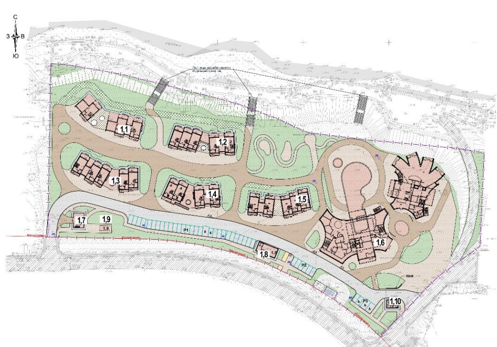
Создание туркомплекса в районе Гребного канала инициировало ООО «ИнвестСтройРесурс», над обликом застройки работало АПМ «Новый Ракурс». В первую очередь строительства войдут 13 гостевых домиков на 67 номеров, здание со СПА и рестораном, конференц-зал, административно-бытовой корпус, прокат спортинвентаря и вспомогательные постройки.
Ранее облик для I очереди туркомплекса согласовывали в конце 2025 года. Теперь некоторые параметры застройки скорректированы, хотя в целом архитектурно-стилистические решения сохранены и представлены более детально. В частности, ранее высота гостиничных домиков указывалась в 1–2 этажа, теперь — только два. Площадь застройки под большинством домиков уменьшилась.
Также немного уменьшена площадь двухэтажного здания с конференц-холлом — с 3022 до 2991 «квадрата». Вместе с тем увеличена площадь двухэтажного здания со спа-комплексом и рестораном — с 4174 до 4818 «квадратов».
Напомним, проект первой очереди туркомплекса в конце минувшего января прошел негосударственную экспертизу. Всего застройка территории площадью около 60 га разделена на четыре очереди: реализовать их планируется до конца 2035 года. Здесь планируется возвести еще более 60 домиков, ФОК, спортзалы и спортивный лагерь, лыжероллерную трассу, парковку и другую инфраструктуру.
Ранее мы писали, что другой инвестор — ООО «НН — Пески Премиум» — тоже собирается построить туркомплекс с гостиницами на Печерских песках — он разместится чуть восточнее. Реализация проекта оценивается в 5,5 млрд рублей. А между двумя этими комплексами компания ООО «Магнум Трейд» намерена возвести спортивный лагерь.
























