13-этажный дом построят на улице Стрелковой в Нижнем Новгороде. В середине апреля региональный Минград утвердил его архитектурно-градостроительный облик. Об этом говорится на сайте министерства.
Инвестором выступает СЗ «Капстрой-НН». Он возведет многоэтажку в границах улиц Баренца, Стрелковая и проспекта Кораблестроителей в Сормовском районе. Судя по онлайн-картам, сейчас здесь находятся несколько построек, огороженные бетонным забором.
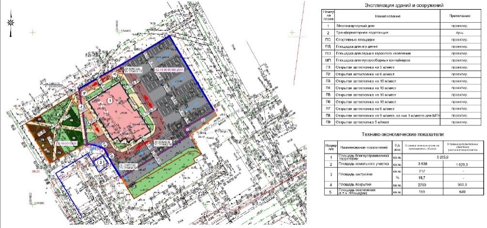
Общая площадь нового дома составит почти 9 тысяч «квадратов». Рядом с новостройкой появятся детские и спортивные площадки, зона отдыха и открытые парковки, которые в сумме вместят 71 автомобиль.
Архитектурную концепцию здания разработала проектная компания Intragrad. Для трех фасадов многоэтажки выбрали светлую цветовую гамму. Четвертый будет ступенчатым и будет окрашен в пиксельной технике в акцентные темно-зеленый и оранжевый цвета.
Отметим, что в ноябре прошлого года для того же здания утверждали другой архитектурный облик. Эту концепцию подготовило бюро «Горпро». Тогда предполагалось, что новостройка будет 11-этажной и прямоугольной в плане, а ее площадь могла составить 7,6 тысячи квадратных метров. Для здания выбрали коричнево-серую цветовую гамму с большим количеством остекления. Однако новый приказ Минграда отменил предыдущую версию проекта.
Напомним, что в прошлом году СЗ «Капстрой-НН» получил разрешение на строительство дома на улице Стрелковой. Какие еще дома разрешили возвести в Нижнем Новгороде, читайте здесь.






