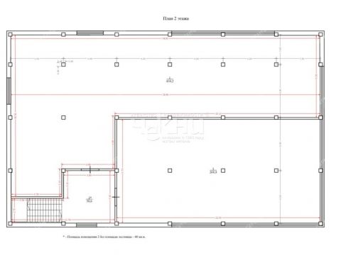
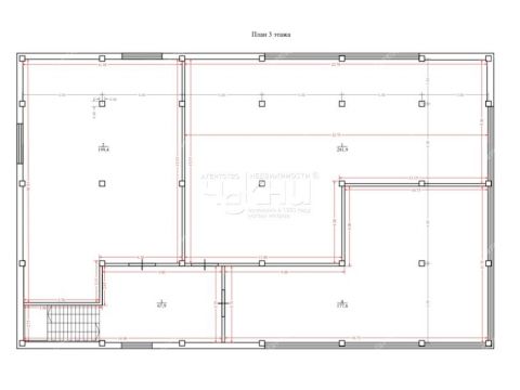
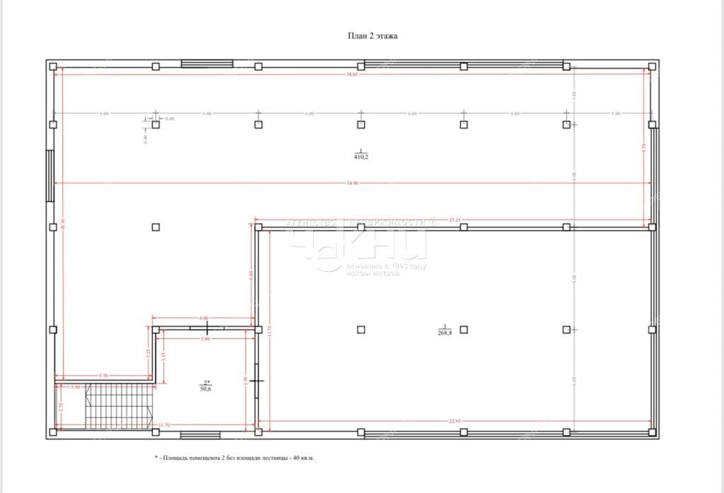
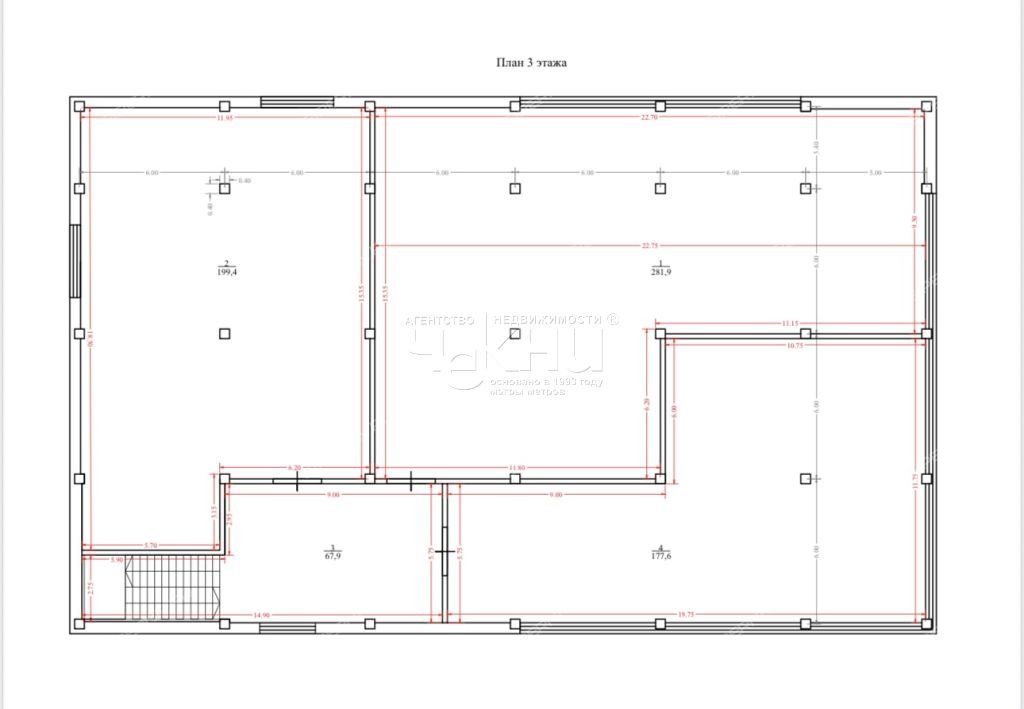
Торговые площади в строящемся торговом центре, ввод в эксплуатацию октябрь 2025 года. Расположен в самом центре мкр Анкудиновский парк, рядом с конечной остановкой общественного транспорта, рынком, магазинами. Возможно нарезать большую или меньшую площадь на разных этажах.
Аренда помещения (деревня Анкудиновка, Лесная ул, 75А/1)Кстовский район, Нижегородская область
200 000 руб./мес.
| № | 2951556 |
|---|---|
| Район | Кстовский |
| Адрес | деревня Анкудиновка, Лесная улица, 75А/1 |
| Площадь | 200 м² |
| Этаж / этажность | 2 / 3 |
| Назначение | торговое |
Контакты:
Кузиков Александр Георгиевич
+7-910-790-
Подробное описание:
Лесная улица на карте


















