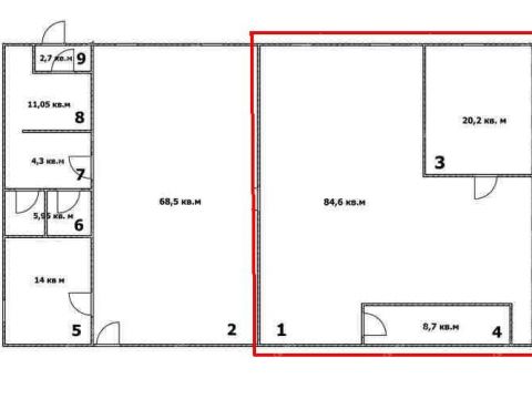
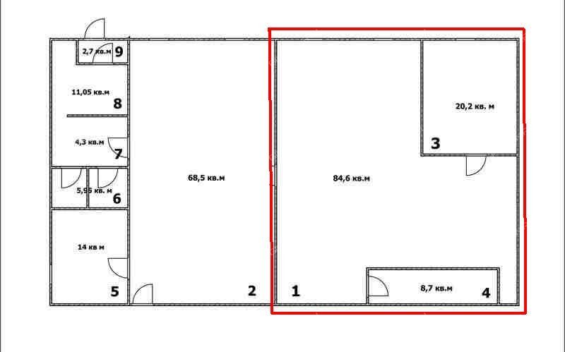
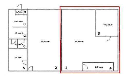
Сдаю в аренду офис 113,5 м2 на втором этаже административного здания в р-не ст.м.Канавинская. Находится на огороженной охраняемой территории. Свободный доступ. Отдельный блок, зал 84,6 м2, кабинет 20,2 м2 и комната без окна 8,7 м2. Хороший ремонт, сан.узел на этаже. Высота потолков 3.4 м. Большие эл. мощности. Пожарно -охранная сигнализация, разводка компьютерной сети. Телефон, интернет. Охрана на входе, удобная транспортная развязка (рядом метро и остановка).
Стоимость 96 900 рублей с НДС- 22%. Дополнительно оплачиваются эл.эн. по счетчику и средства связи. Договор с ИП.
Аренда помещения на Маршала Казакова ул. 5Московский район, Нижний Новгород
96 929 руб./мес.
| № | 2971314 |
|---|---|
| Район | Московский |
| Адрес | Маршала Казакова ул. 5 |
| Площадь | 113,5 м² |
| Назначение | офисное |
Контакты:
Биткина Ирина т
+7-915-959-
Подробное описание:
Московский район на карте










