Арт. 128545985
Торговое помещение с отдельным входом, расположенное в торговом центре «Сокол». Здание 2010 года постройки.
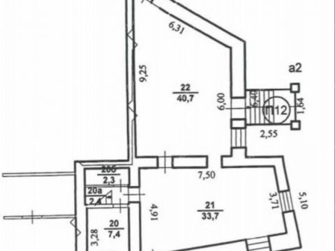
Возможна аренда части помещения.
Цокольный этаж с полноценными окнами, отдельный вход с презентабельной входной группой и местом для наружной рекламы над входом, наличие запасного выхода. Все коммуникации, свой санузел, в каждой комнате помещения установлены кондиционеры, приточная вентиляция, есть отдельная комната под организацию серверной с мощными кондиционерами. Высота потолков – 2,8м. (до армстронга – 2,65). Прямо перед входом в помещение – вместительная парковка. Круглосуточная охрана здания, доступ 24/7.
Помещение идеально подойдёт под магазин автозапчастей – в шаговой доступности есть автомойка, автосервис, шиномонтаж и заправка, дорога рядом с ТЦ – является въездом в огромный жилой массив. Помимо этого покупательский трафик также обеспечивают магазины в самом ТЦ, в числе которых – супермаркет «Перекрёсток», поблизости также расположены остановки общественного транспорта (автобус, троллейбус, трамвай), прямо через дорогу находится ФОК «Юность», в 10 минутах ходьбы – расположен Сормовский парк.
Дополнительно оплачиваются коммунальные платежи.
Назначение: торговые площади (магазины у дома)






















