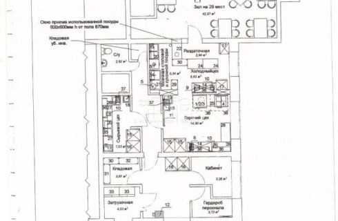
Продается кафе с оборудованием и мебелью. Помещение в собственности. Зал на 28 мест. Кафе работает 12 лет. Здание 2010 года постройки.
Продажа помещения на наб. Казанская, д. 5Нижегородский район, Нижний Новгород
36 500 000 руб.
| № | 2941182 |
|---|---|
| Район | Нижегородский |
| Адрес | наб. Казанская, д. 5 |
| Площадь | 143 м² |
| Этаж / этажность | 1 / 19 |
| Объект | помещение в жилом доме |
| Назначение | офисное |
Контакты:
Кузнецов Антон Артурович
+7-903-602-
Подробное описание:
Дом 5 на наб. Казанская
Почта
Почта России578м
Почта России617м
Магазины
Акконд292м
Spar Express431м
Гастроном Фамиль431м
У Палыча441м
Пятерочка468м
Школы
Гимназия № 13410м
Школа № 30 им. Л.Л. Антоновой686м
Средняя школа № 186865м
Медицина
Поликлиника № 7385м
Поликлиника № 7385м
Детская городская поликлиника № 22771м
Детские сады
Оленёнокв здании
Детский сад № 29702м
Детский сад № 42851м
Детский сад № 120914м
Детский сад № 445971м























