Помещение. Нижний Новгород. Нижегородский район. Площадь Сенная.
Помещение распложено в жилом доме на 2-ом этаже. Вход со двора как на первый этаж.
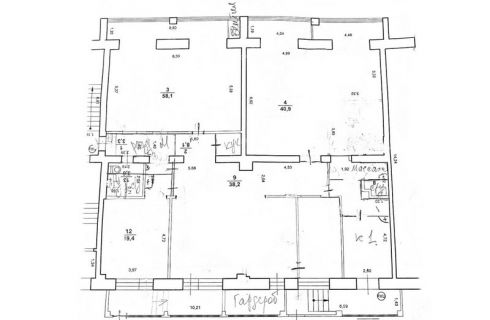
Общая площадь 252 кв.м. По планировке помещение состоит из двух залов и четырех санузлов. Два отдельных входа со двора.
В данный момент помещение используется как йога-центр. Текущая планировка включает просторный холл, кабинет администратора,
серверную, два зала для занятий, кабинет массажа, две раздевалки мужская и женская, три санузла, душевая и гардеробная.
Из окон открывается вид на площадь Сенную и колесо обозрения. Помещение возможно использовать как представительский офис компании,
медедицинский центр, фитнесс центр, спа-услуги и т.п. Выделено 15 кВт. Высота потолка 2.8 метра.
Продажа помещения на Сенная пл., д.6/49Нижегородский район, Нижний Новгород
43 499 988 руб.
№ | 2957427 |
---|---|
Район | Нижегородский |
Адрес | Сенная пл., д.6/49 |
Площадь | 252 м² |
Назначение | офисное |
Контакты:
Подробное описание:
Нижегородский район на карте





























































