Продаётся помещение свободного назначения в новом доме по ул. Деловая, напротив ТРЦ «Фантастика». 
Развитая инфраструктура, отличная транспортная развязка. 
Помещение подойдет под офис и под торговые площади, выставочные помещения, цветы, парикмахерские, услуги. 
Помещение без отделки. В стоимость помещения включен НДС 20%, плательщикам этого налога возможно получить возврат.
Цена и условия приобретения помещения обсуждаются.
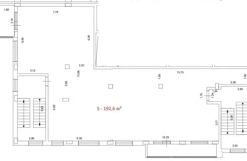
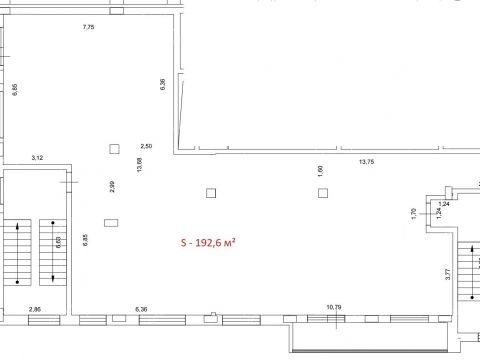
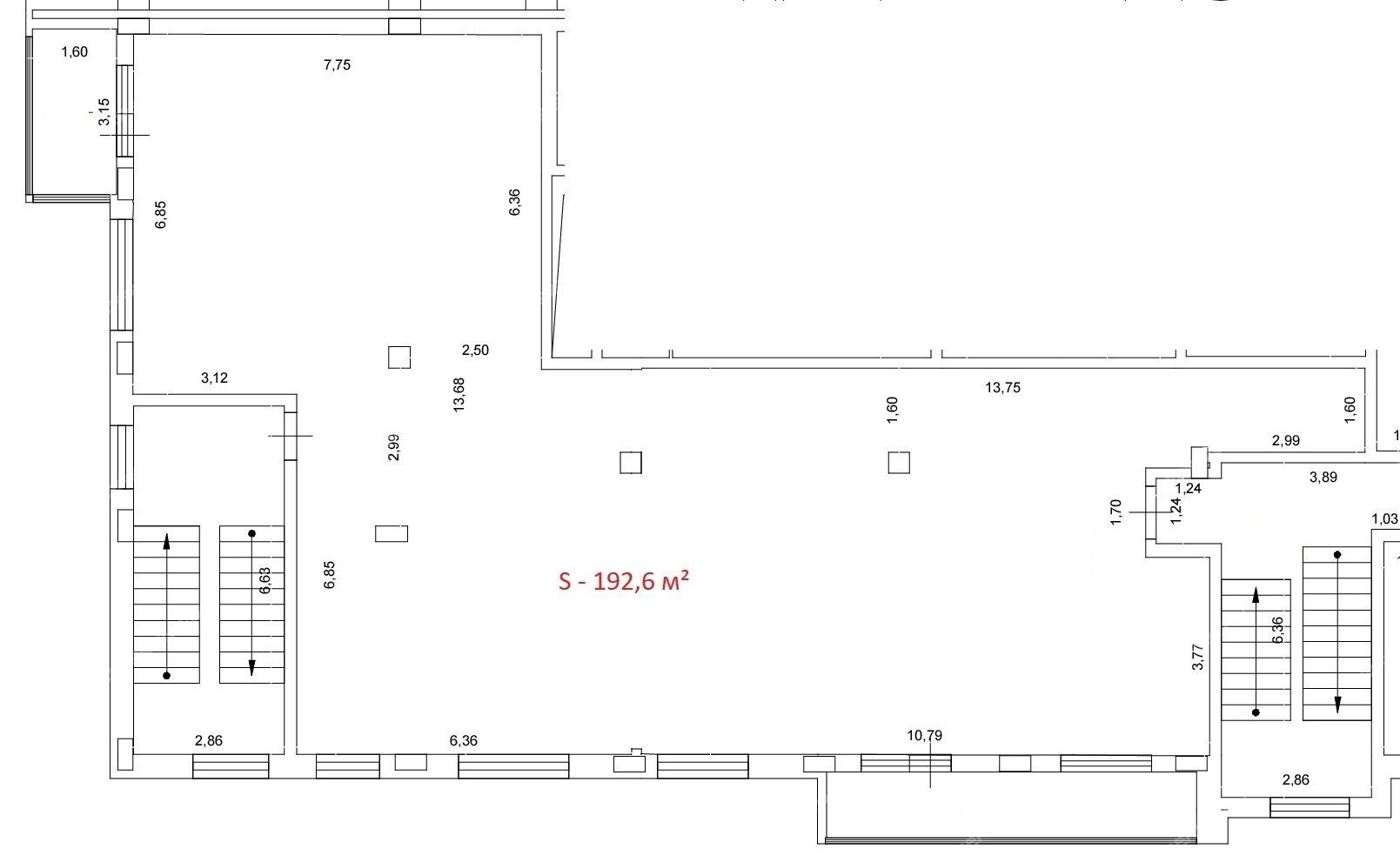
        Продажа помещения на ул. Деловая, д. 22Нижегородский район, Нижний Новгород
                        30 057 156 руб.                                            
                    | № | 2960048 | 
|---|---|
| Район | Нижегородский | 
| Адрес | ул. Деловая, д. 22 | 
| Площадь | 192,6 м² | 
| Год постройки | 2023 | 
| Этаж / этажность | 1 / 10 | 
| Высота потолков | 2,7 м | 
| Отдельный вход | есть | 
| Объект | помещение в жилом доме | 
| Назначение | офисное, торговое | 
Контакты:
                
            Алексей        
                +7-987-394-
Подробное описание:
                        Торг уместен                    
                    
                        да                    
                Дом 22 на ул. Деловая
Почта
Почта России895м
Магазины
Спортмастер213м
DNS213м
Эльдорадо213м
Ашан213м
Кантата213м
Школы
Средняя школа № 102 с углубленным изучением отдельных предметов292м
Медицина
Нижегородский областной клинический онкологический диспансер409м
Поликлиника580м
Нижегородский областной клинический противотуберкулезный диспансер662м
Нижегородский областной клинический противотуберкулезный диспансер662м
Детские сады
Оленёнок467м
Детский сад № 5508м
Детский сад № 33844м
Детский сад № 447848м
 
             
             
             
             
             
             
             
        














