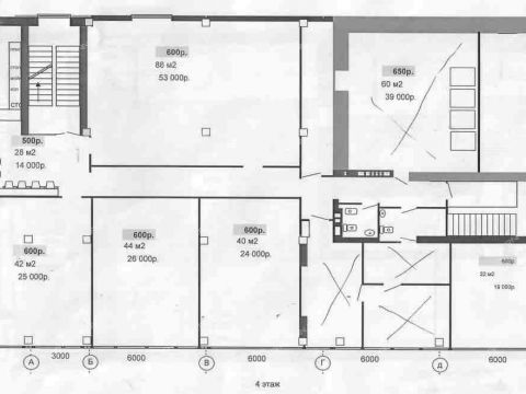
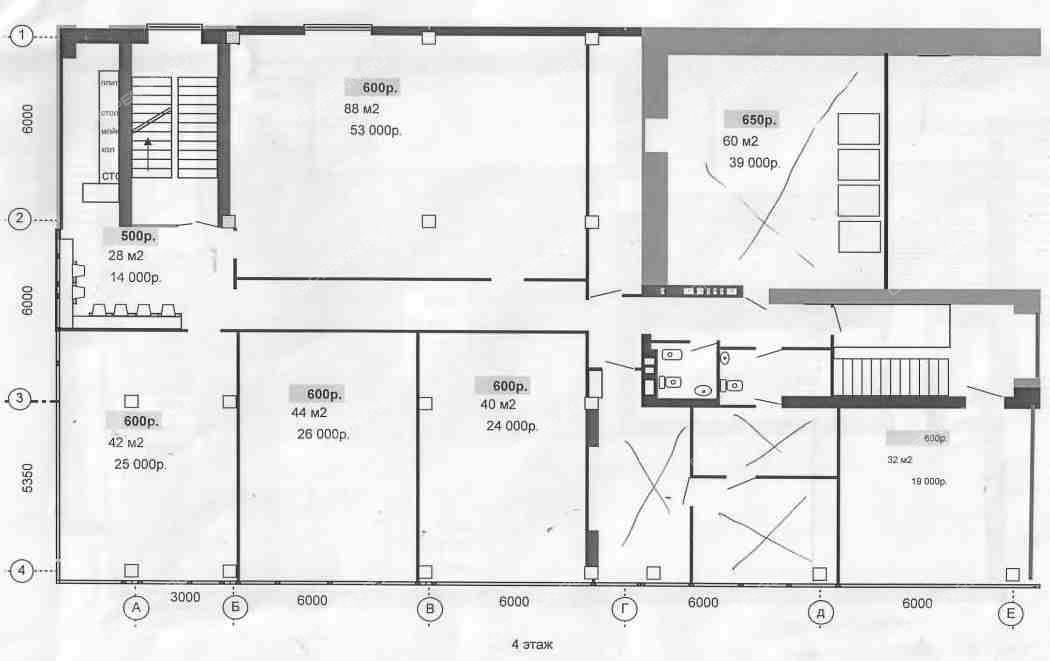
Сдается в аренду офис 85 м2 в административном здании на ул.Долгополова. Однообъемное помещение с окном. 4 этаж. Высокие потолки - 3,2 м. Требуется косметический ремонт (даются арендные каникулы). Есть приточно-вытяжная ветиляция, пожарная сигнализация кондиционеры. Охрана, видеонаблюдение. Своя парковка перед зданием. Удобная транспортная развязка, рядом остановка обществ. транспорта. Коммунальные платежи включены, кроме эл/эн и услуг связи, без НДС.
        Аренда помещения на Долгополова ул, д. 50/40Канавинский район, Нижний Новгород
                        63 375 руб./мес.                                            
                    | № | 2959951 | 
|---|---|
| Район | Канавинский | 
| Адрес | Долгополова ул, д. 50/40 | 
| Площадь | 84,5 м² | 
| Назначение | офисное | 
Контакты:
                
            Ирина Касаткина т        
                    
                +7-915-959-
Подробное описание:
Канавинский район на карте
 
             
             
             
             
             
        












