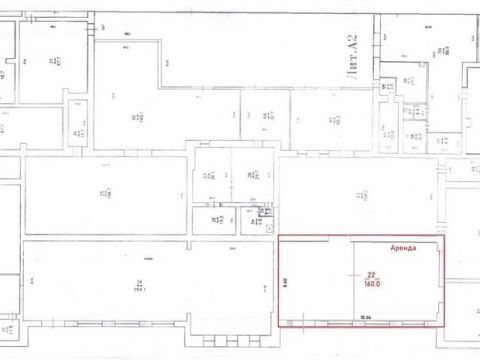
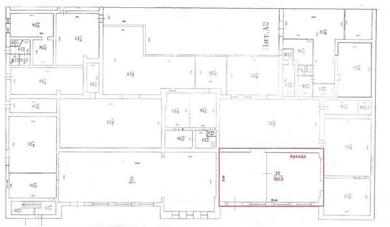
Аренда помещения. Нижний Новгород. Канавинский район. Улица Должанская. Помещение общей площадью 160 кв.м. Расположено на 1-ом этаже административного здания. Отдельный вход. По планировке однообъемное помещение. Размеры 18.66 на 8.6 метра. Большие окна с рольставнями. Высота до потолка 3.5 метра. Выделно 50 кВт. Свой санузел. Установлена вытяжка. Помещение в данный момент разделено перегородкой. Перед входом есть небольшая парковка для авто. Доступ 24/7. Сдается от ИП. УСН. НДС 5%. Дополнительно оплачивается эл.энергия, вода, интернет, НДС 5%. Шаговая доступность до Московского вокзала, метро Московская, площади Ленина и остановок общественного транспорта.
Аренда помещения на Должанская ул, д.37Канавинский район, Нижний Новгород
88 000 руб./мес.
| № | 2969026 |
|---|---|
| Район | Канавинский |
| Адрес | Должанская ул, д.37 |
| Площадь | 160 м² |
| Назначение | складское |
Контакты:
Бунаков Алексей т
+7-915-959-
Подробное описание:
Канавинский район на карте























