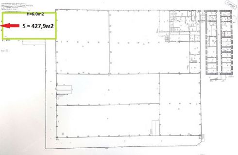
Аренда производства /теплого склада: 427,9 м2, ворота - уровень земли.
Большие мощности по электроэнергии до 300кВт, два ввода.
Расположение: Сормовский район, ул. Коминтерна 41В (ст. Варя, Бурнаковский проезд) Пересечение улицы Коминтерна и ул. Бурнаковская.
- складское помещение- 427,9 м2, без рампы, однообъемное
- теплое, есть возможность подведения водоснабжения
- размер 30,0*14,3, колонн нет
- высота потолка 6,0 м
- ворота 3,5 м , на нулевом уровне
- полы с антипылевым покрытием
Может быть выделен дополнительно земельный участок в аренду.
Коммуникации: Электроэнергия на здание 750 кВт (2 ввода), водоснабжение, водоотведение, отопление - центральные. Оборудовано вентиляцией, пожарной сигнализацией, установлены пожарные гидранты, система пожаротушения требует ремонта.
Территория комплекса 2,5 га огорожена и заасфальтирована. На территорию базы два въезда, один через КПП (для малых машин), отдельный заезд для фур с ул. Коминтерна. Большая парковка. Круглосуточная охрана.
На территории расположено офисное здание 5 этажей, площадью 2130,5 м2. Кабинетная система, хороший ремонт. Кондиционеры в каждом помещении.
Возможны дополнительные площади в соседних зданиях: офисы (от 15,0 м2 кабинетная система и открытая планировка с панорамными окнами от 100,0м2), склад холодный-400,0 м2, склад теплый (ранее автомастерские)- 329,1 м2, а также может быть выделен дополнительно земельный участок в аренду.
Дополнительно оплачиваться: коммунальные и эксплуатационные платежи, . Обеспечительный взнос.
С реальным арендатором возможны индивидуальные условия аренды. Без комиссии для арендатора.
Аренда помещения на Коминтерна ул, д.41ВСормовский район, Нижний Новгород
385 110 руб./мес.
| № | 2970796 |
|---|---|
| Район | Сормовский |
| Адрес | Коминтерна ул, д.41В |
| Площадь | 427,9 м² |
| Назначение | складское |
Контакты:
Ирина т
+7-906-352-
Подробное описание:
Сормовский район на карте














