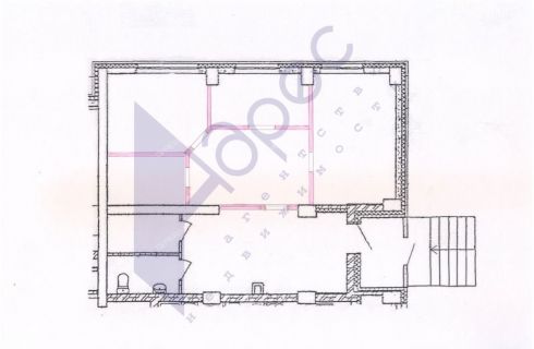
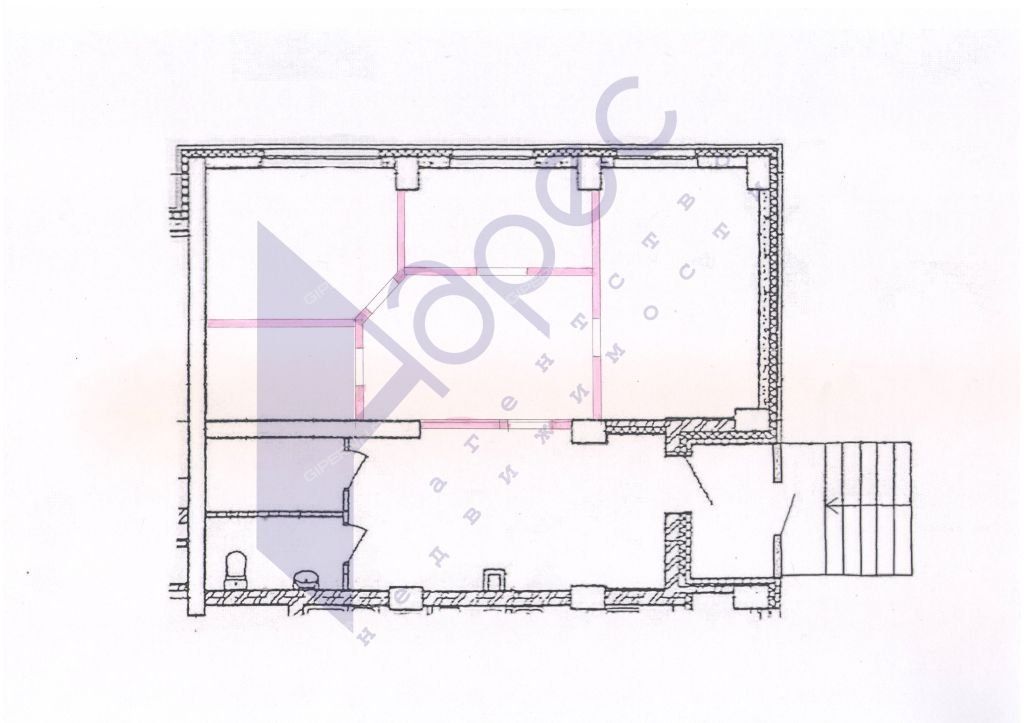
Предлагается в аренду просторное коммерческое помещение с отдельным входом, расположенное на первом этаже современного 19-этажного жилого дома. Помещение однообъемное, что обеспечивает удобство планировки и гибкость использования.
Преимущества:
Отдельный вход: удобный доступ для клиентов и сотрудников.
Свободное назначение: идеально подходит для торговли, оказания услуг или организации офиса.
Современный жилой дом: помещение находится в заселенном квартале с высоким пешеходным трафиком.
Гибкость планировки: в настоящее время установлены гипсокартонные перегородки, позволяющие создать до 4 кабинетов.
Возможность аренды с мебелью: по договоренности.
Технические характеристики:
Несущие стены по периметру обеспечивают надежность и долговечность конструкции.
Помещение готово к использованию и требует минимальной отделки.
Не упустите шанс арендовать идеальное помещение для вашего бизнеса! Свяжитесь с нами для получения дополнительной информации и организации просмотра.
Аренда помещения на ш. Московское, д. 27АКанавинский район, Нижний Новгород
75 000 руб./мес.
| № | 2970415 |
|---|---|
| Район | Канавинский |
| Адрес | ш. Московское, д. 27А |
| Площадь | 68 м² |
| Этаж / этажность | 1 / 19 |
| Высота потолков | Уточнить |
| Отдельный вход | Уточнить |
| Объект | помещение в жилом доме |
| Назначение | ПСН |
Контакты:
Науменко Оксана Викторовна,админ
+7-951-906-
Подробное описание:
Дом 27А на ш. Московское
Почта
Почта России347м
Почта России618м
Магазины
Магнит84м
Бристоль144м
Каравай150м
Пятерочка185м
Моя узола185м
Школы
Школа № 121302м
Школа № 51569м
Школа № 21842м
Медицина
Детская поликлиника № 19551м
Поликлиника № 3665м
Кабинет врача общей практики669м
Поликлиника № 2720м
Поликлиника № 2772м
Детские сады
Детский сад № 53184м
Детский сад № 411193м
Детский сад № 51423м
Детский сад № 115794м
Детский сад № 476842м
Аренда помещения на ш. Московское, д. 27А


















