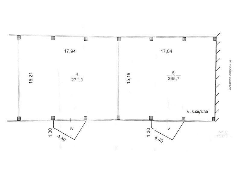
Сдам теплый склад 177,9м2, разгрузка с крытой рампы, бетонные полы, высота 6м. Центральное отопление. Территория складской базы, хороший подъезд для любого транспорта,в том числе фуры, охрана на въезде. Рядом офисы от 30 м2.
Ставка по складу - 600 руб/м2, УСН + отопление.
Аренда помещения на ул. Федосеенко, д. 47Сормовский район, Нижний Новгород
106 740 руб./мес.
| № | 2957211 |
|---|---|
| Район | Сормовский |
| Адрес | ул. Федосеенко, д. 47 |
| Площадь | 177,9 м² |
| Объект | помещение в нежилом здании |
| Назначение | складское |
Контакты:
Татьяна Телегина т
+7-910-140-
Подробное описание:
Дом д. 47 на ул. Федосеенко















