Сдается небольшая комната под склад по адресу ул. Коммунистическая, 2 в помещении свободного назначения.
Чистая светлая комната, недавно выполнен косметический ремонт. Отдельно оплачивается только электричество.
Отдельный вход с улицы. Помещение двухуровневое: часть цоколь, часть 1 этаж.
Аренда помещения на ул. Коммунистическая, д. 2Канавинский район, Нижний Новгород
3 000 руб./мес.
| № | 2964529 |
|---|---|
| Район | Канавинский |
| Адрес | ул. Коммунистическая, д. 2 |
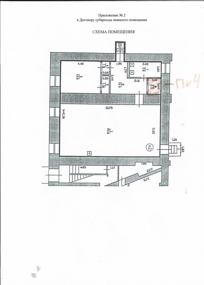
| Площадь | 2,6 м² |
| Этаж / этажность | 1 / 4 |
| Высота потолков | 2,5 м |
| Отдельный вход | есть |
| Объект | помещение в жилом доме |
| Назначение | ПСН |
Контакты:
Наталья Викторовна
+7-987-759-
Подробное описание:
Ремонт
есть
Дом д. 2 на ул. Коммунистическая
Аренда помещения на ул. Коммунистическая, д. 2













