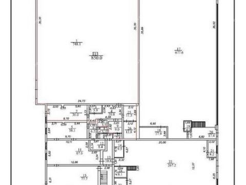
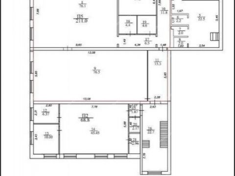
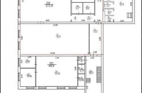
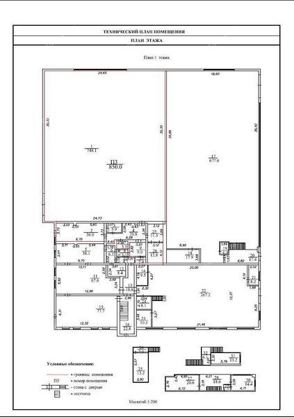
TEПЛЫЕ ПОMEЩEНИE 850м2(20Х39) и 833 M2 (24X30),офиc 211м2.
МОЖНO AРEHДОВAТЬ ПO OTДЕЛЬHOСTИ .
XOЛOДНЫЙ CКЛАД 420М2 ВЫСОТА 6М.
В непосредственной близости транспортные компании ПЭК и Балтика.
База огорожено забором, территория заасфальтирована, имеются все необходимое коммуникации. Удобный подъезд к базе всех видов транспорта, в том числе фур длинномеров. Передвижная эстакада (погрузочная рампа) для загрузки и выгрузки.
Отдельный въезд, доступ к базе с двух противоположных сторон.
Отопление от собственной газовой котельной 500квт, регулируемый температурный режим в отопительный сезон. Водоснабжений и канализация
Аренда помещения на Вторчермета ул, д.1Канавинский район, Нижний Новгород
1 360 000 руб./мес.
| № | 2962845 |
|---|---|
| Район | Канавинский |
| Адрес | Вторчермета ул, д.1 |
| Площадь | 1 600 м² |
| Назначение | складское |
Контакты:
Сутырин Михаил т
+7-906-365-
Подробное описание:
Канавинский район на карте





















