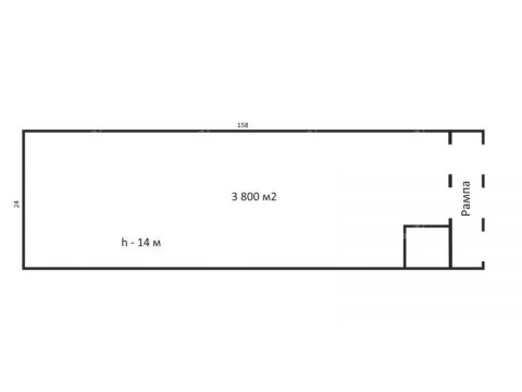
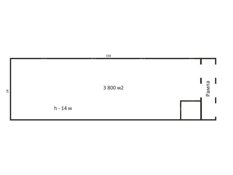
Аренда теплого склада3800 кв.м.
Отапливаемое помещение.
Ровные полы (антипыль).
Высота потолков 14 м.
Хороший подъезд любого грузового транспорта.
Авторампа и 3 ворот.
Бытовки и офисные помещения оборудованые телефонией и скоростным Интернетом.
Охраняемая территория, круглосуточный доступ.
Неограниченные эл. мощности от 1000 кВт.
Административно-офисный Центр с развитой инфраструктурой от 50 кв.м.
Аренда помещения на Зайцева ул, д. 31Сормовский район, Нижний Новгород
2 470 000 руб./мес.
| № | 2969237 |
|---|---|
| Район | Сормовский |
| Адрес | Зайцева ул, д. 31 |
| Площадь | 3 800 м² |
| Назначение | складское |
Контакты:
Сутырин Михаил т
+7-906-365-
Подробное описание:
Сормовский район на карте



















