Арт. 127809280
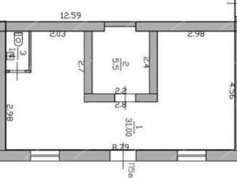
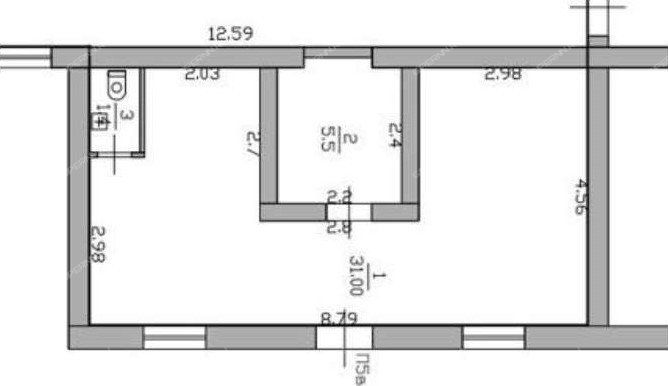
Продается торговое помещение с отдельным входом, пристроенное к многоэтажному жилому дому, расположенному в крупном жилом микрорайоне Кузнечиха. Помещение оборудовано вентиляцией выше конька, в каждом кабинете сделаны выводы под воду. В соседях оптика, пиццерия, Озон, Пармаркет, аптеки Фармани и 52 плюс. В непосредственной близости к помещению расположены магазины Чижик, Магнит и ресторан быстрого питания Вкусно и Точка”. Высокий трафик генерирует главная прогулочная аллея микрорайона, вдоль которой расположен дом.
Назначение: торговые площади (магазины у дома)











