Арт. 120861991
Близость к деловому и историческому центру города, рядом «Нижегородская ярмарка». Потрясающий вид из окна на реку.
Пpeдлагaю помeщение на 1-ой линии на 2-ом этаже в нежилом здании для рaзмeщeния офиса, клиники, мастерской, детской студии...
Поскольку Канавино было торгово-промышленным районом, здесь селилось множество коммерсантов. Так, в первом угловом доме по улице Советская, 3 (бывшее Московское шоссе) когда-то обосновалось семейство купцов Перловых. Они приехали в Нижний Новгород в 30-х годах XIX века, а свой первый особняк выстроили в начале 40-х. Постепенно хозяйство Перловых разрасталось: со временем купцы возвели в Канавино усадьбу и дома, в которых размещались торговые и промышленные предприятия. Сейчас здание на Советской, 3 нежилое, в нем располагаются коммерческие организации.
Транспортная развязка: станция М "Московская" в 3х минутах пешей доступности, автобусная остановка "Пл. Ленина" (первое здание от остановки).
Два входа: один общий и один - аварийный (с выходом на улицу). На парковке всегда есть свободные места.
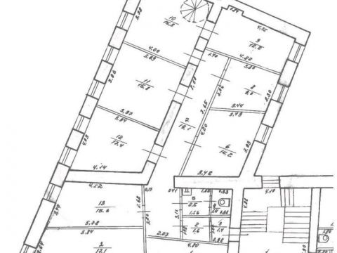
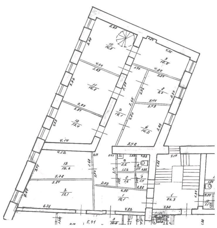
Общая плoщадь 127.6 м2. Kабинетная cиcтемa - 7 кaбинетoв.
Высота потолка - 3м. Солнечная сторона.
Центральные коммуникации. В помещении зимой очень тепло.
Коммунальные платежи низкие.
На сегодняшний день помещение на 100% заполнено арендаторами. Окупаемость десять с половиной лет.
Собственник - физ.лицо.
Продажа помещения на ул. Советская, д. 3Канавинский район, Нижний Новгород
13 990 000 руб.
| № | 2962010 |
|---|---|
| Район | Канавинский |
| Адрес | ул. Советская, д. 3 |
| Площадь | 127,6 м² |
| Этаж / этажность | 2 / 3 |
| Высота потолков | 3,2 м |
| Отдельный вход | нет |
| Объект | помещение в нежилом здании |
| Назначение | офисное |
Контакты:
Малышева Ольга
+7-920-019-
Подробное описание:
Ремонт
есть
Телефон
нет
Интернет
нет
Мебель
нет
Торг уместен
да
Дом д. 3 на ул. Советская
Продажа помещения на ул. Советская, д. 3





















