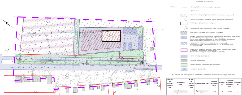
Новое автомобильное производство планируют запустить в Нижнем Новгороде к 2034 году. Оно разместится на улице Новополевой в Автозаводском районе. Проект планировки и межевания территории вынесен на общественные обсуждения.
Проект планировки подготовила компания «Геопроект-НН»: документация охватывает территорию площадью почти 9 га. Заказчиком выступило ООО «Вершина». Инвестор планирует построить производственное здание высотой 1–2 этажа и площадью 10,8 тысячи «квадратов».
Также работы включают формирование въезда на территорию, внутренних проездов, устройство тротуаров, создание парковок для грузового и легкового транспорта. Кроме того, инвестору предстоит проложить коммунальные сети и провести озеленение прилегающей территории.
Общественные обсуждения проекта планировки продлятся до 10 апреля. Ознакомиться с документацией можно в здании администрации Автозаводского района. Отзывы и предложения можно оставить там же — в журнале для посетителей, а также в электронном виде на портале или же направить письмом по адресу: проспект Ильича, 31, кабинет 222.
Ранее сообщалось, что участок на улице Новополевой выделили инвестору под производство прицепов. В 2024 году объем инвестиций в реализацию проекта оценивался в 91 млн рублей.






