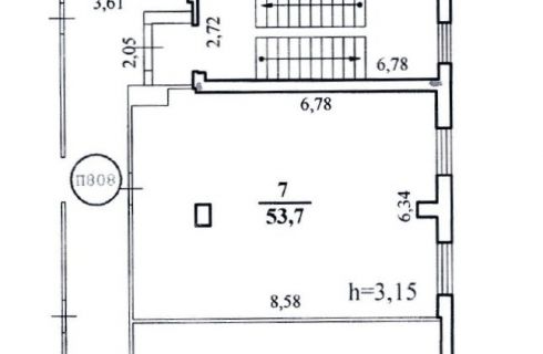
Аренда офиса. Нижний Новгород. Нижегордский район. Улица Большая Печерская. Офис общей площадью 53.7 кв.м. Расположен на 8-ом этаже Бизнес Центра Дипломат. Офис разделен перегородкой на два кабинета. Кондиционер. Коридорная система. Охрана, видеонаблюдение. Остановка общественного транспорта в шаговой доступности. Сдается от юр.лица. Ставка аренды без НДС. Дополнительно оплачиваются коммунальные платежи. Здание обслуживает управляющая компания.
Аренда помещения на Большая Печерская ул., д.26Нижегородский район, Нижний Новгород
53 700 руб./мес.
| № | 2955387 |
|---|---|
| Район | Нижегородский |
| Адрес | Большая Печерская ул., д.26 |
| Площадь | 53,7 м² |
Контакты:
Бунаков Алексей т
+7-915-959-

Подробное описание:
Нижегородский район на карте







