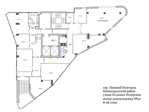
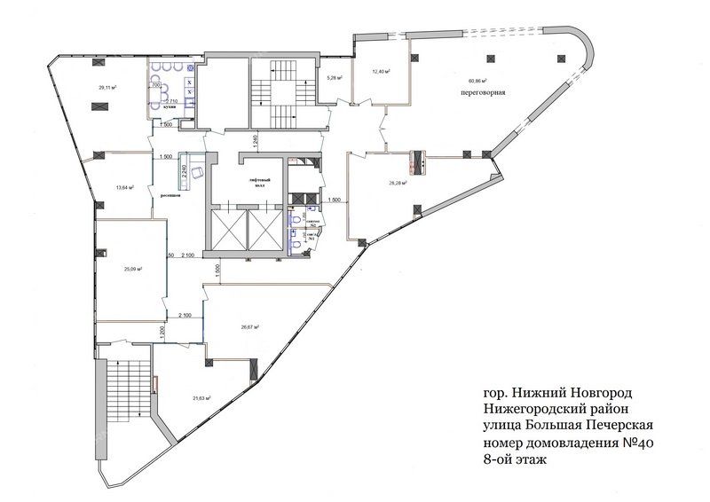
Аренда офиса. Нижний Новгород. Нижегородский район. Улица Большая Печерская. Офис общей площадью 388,4 кв.м. Расположен на 8-ом этаже бизнес центра класса А. По планировке офис занимает целый этаж. В офисе 7-м кабинетов, переговорная, два санузла, кухня, ресепшн. Хороший ремонт. Кондиционеры в каждом кабинете. Вход в офис по магнитным ключам. Выделено 50 кВт. В здании два лифта. Два парковочных места (10000 рублей за одно место). Удобная транспортная развязка. В здании круглосуточная охрана, видеонаблюдение на каждом этаже. Коммунальные услуги оплачиваются дополнительно по приборам учета: отопление и электрическая энергия. Сдается от ИП. УСН. НДС 5%. Арендная плата 1600 руб. за кв.м. плюс НДС 5%. Шаговая доступность до площади Сенная, улицы Минина и улицы Максима Горького. Рядом есть продуктовые магазины и кафе. Несколько остановок общественного транспорта.
Аренда помещения на Большая Печерская ул., д.40Нижегородский район, Нижний Новгород
621 440 руб./мес.
| № | 2972882 |
|---|---|
| Район | Нижегородский |
| Адрес | Большая Печерская ул., д.40 |
| Площадь | 388,4 м² |
| Назначение | торговое |
Контакты:
Бунаков Алексей т
+7-915-959-
Подробное описание:
Нижегородский район на карте



































































