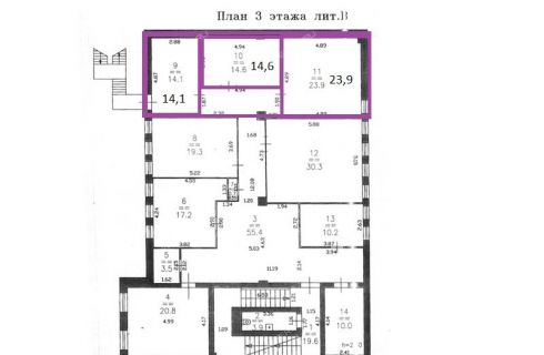
Сдаю в аренду офис 53 м2 на Скобе , на ул.Кожевенной, в Центре города, фактичски напротив Нижегородского Кремля. Второй ряд домов. 3 отдельных кабинета с кондиционерами, расположены друг за другом, 3 этаж. Хороший офисный ремонт. Стихийный паркинг. Эл/эн, услуги связи+, без НДС.
Аренда помещения на Кожевенная ул, д.1АНижегородский район, Нижний Новгород
52 900 руб./мес.
| № | 2966492 |
|---|---|
| Район | Нижегородский |
| Адрес | Кожевенная ул, д.1А |
| Площадь | 52,9 м² |
| Назначение | офисное |
Контакты:
Ирина Касаткина т
+7-915-959-
Подробное описание:
Нижегородский район на карте














