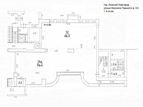
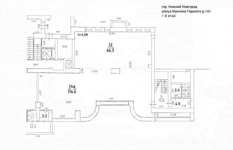
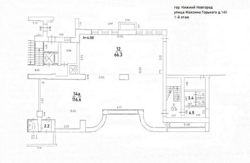
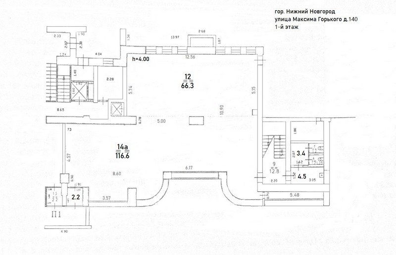
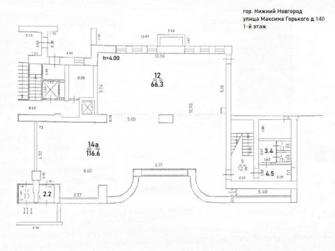
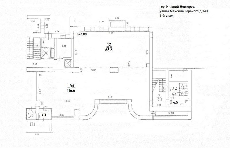
Аренда помещения. Нижний Новгород. Нижегородский район. Улица Максима Горького. Предлагается в аренду помещение общей площадью 200 кв.м. Расположено по красной линии на 1-ом этаже жилого дома. Отдельный вход. По планировке состоит из однообъемного пространства площадью 182,9 кв.м. и санузла. Высота потолка 4 метра. Большие окна. На помещение выделено 40 кВт. Возможно использовать как магазин, выставочный зал, банк и т.п. Рядом с помещением вход в метро и остановка общественного транспорта.
Шаговая доступность до площади Максима Горького, улицы Большая Покровская. Дополнительно к аренде оплачиваются электрическая энергия по прибору учета, интернет, уборка. Сдается помещение от юридического лица.
Аренда помещения на Максима Горького ул., д.140Нижегородский район, Нижний Новгород
420 000 руб./мес.
| № | 2968546 |
|---|---|
| Район | Нижегородский |
| Адрес | Максима Горького ул., д.140 |
| Площадь | 200 м² |
| Назначение | торговое |
Контакты:
Бунаков Алексей т
+7-915-959-
Подробное описание:
Нижегородский район на карте





























