Арт. 127673732
Сдается в аренду офисное помещение премиального уровня в центре города в непосредственной близости от Нижегородского Кремля и одной из главных достопримечательностей города Чкаловской лестницы. В шаговой доступности находятся ключевые административные учреждения города и области. Очень высокие пешеходный и автомобильный трафики.
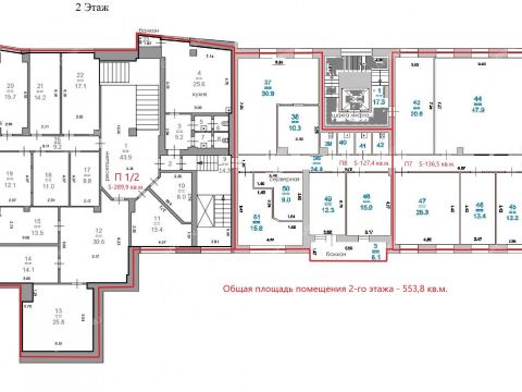
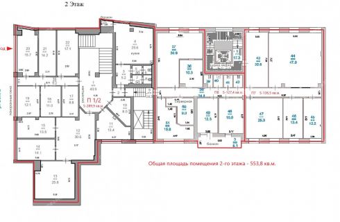
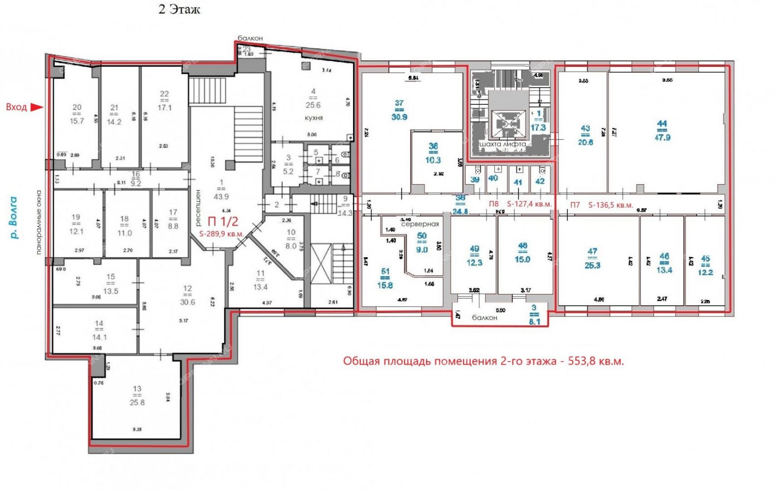
Помещение расположено на 2-ом этаже и имеет два входа: один вход с Красной линии и запасной выход с торца здания.
Кабинетно-коридорная планировка с зоной ресепшен, гостевым холлом и отдельными кабинетами, общим количеством 23 шт. (метраж от 10,3 кв.м. до 30,9 кв.м.), а также на этаже расположены: оборудованная кухня площадью 25,6 кв.м., серверная и 4 санузла.
Обеспечено наличие всех необходимых инженерных систем, отвечающих СНиП.
При необходимости можно сделать более открытую планировку.
Есть возможность аренды парковочных мест на подземном паркинге.
Готовы рассмотреть ценовое предложение от арендатора.
Также есть возможность аренды помещения площадью 250 кв.м.на 1-ом этаже.
Готовы обсудить Ваше предложение по цене.
Аренда помещения на наб. Верхне-Волжская, д. 2БНижегородский район, Нижний Новгород
2 104 440 руб./мес.
| № | 2962579 |
|---|---|
| Район | Нижегородский |
| Адрес | наб. Верхне-Волжская, д. 2Б |
| Площадь | 553,8 м² |
| Этаж / этажность | 2 / 9 |
| Высота потолков | Уточнить |
| Отдельный вход | нет |
| Объект | помещение в жилом доме |
| Назначение | офисное |
Контакты:
Протасов Ярослав
+7-910-884-
Подробное описание:
Ремонт
есть
Телефон
нет
Интернет
нет
Мебель
нет
Дом 2Б на наб. Верхне-Волжская
Почта
Почта России612м
Магазины
Пятерочка418м
Eurospar453м
Сырная лавка576м
Круассан Дорэ583м
Каравай620м
Школы
Гимназия № 1270м
Лицей № 8 им. академика Е.К. Федорова540м
Гимназия № 13691м
Лицей № 40905м
Медицина
Городская поликлиника № 21763м
Поликлиника891м
Детские сады
Детский сад № 9205м
Детский сад № 120752м
Детский сад № 120793м
Детский сад № 20965м
Аренда помещения на наб. Верхне-Волжская, д. 2Б





















