Арт. 127673969
Сдается в аренду коммерческое помещение премиального уровня в центре города в непосредственной близости от Нижегородского Кремля и одной из главных достопримечательностей города Чкаловской лестницы. В шаговой доступности находятся ключевые административные учреждения города и области. Очень высокие пешеходный и автомобильный трафики. Помещение имеет два входа: отдельный вход с Красной линии и запасной выход с торца здания.
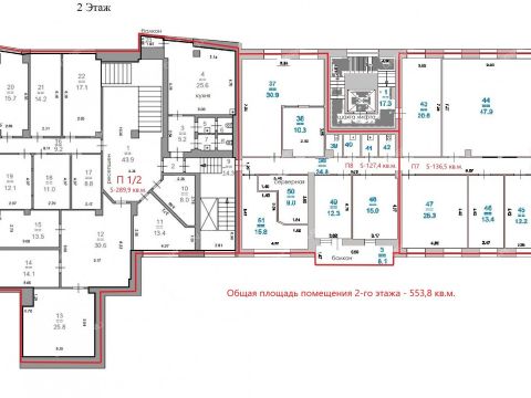
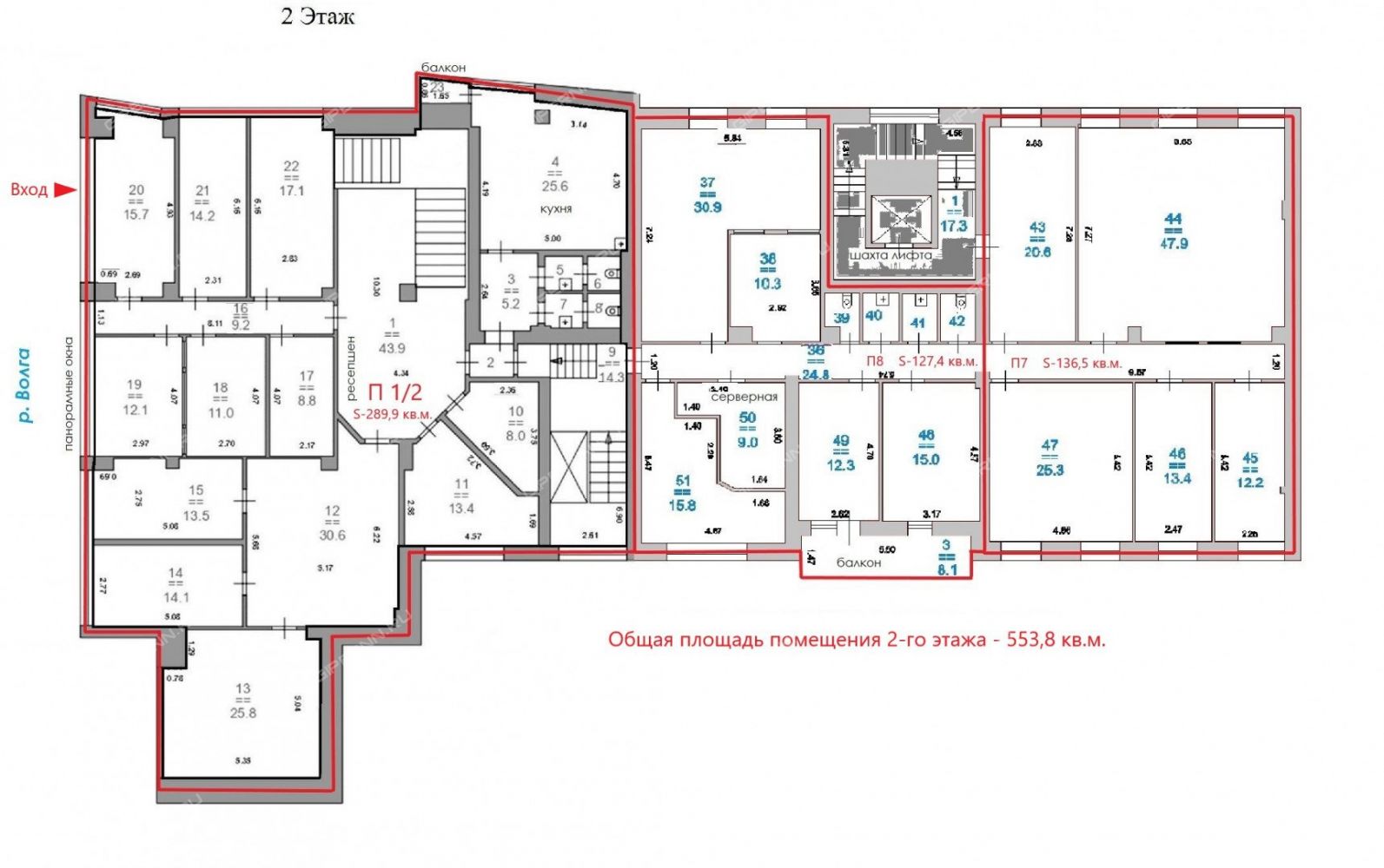
Общая площадь помещения включает в себя: 1-ый этаж площадью 250 кв.м. и 2-ой этаж площадью 553,8 кв.м.
В настоящее время первый этаж оборудован под операционный офис банка, перепланировка под другой вид бизнеса возможна.
Второй этаж имеет кабинетно-коридорную планировку с зоной ресепшен, гостевым холлом и отдельными кабинетами, общим количеством 23 шт. (метраж от 10,3 кв.м. до 30,9 кв.м.), а также на этаже расположены: оборудованная кухня площадью 25,6 кв.м., серверная и 4 санузла.
Обеспечено наличие всех необходимых инженерных систем, отвечающих СНиП.
Есть возможность аренды парковочных мест на подземном паркинге.
Готовы рассмотреть ценовое предложение от арендатора.
Аренда помещения на наб. Верхне-Волжская, д. 2БНижегородский район, Нижний Новгород
3 054 440 руб./мес.
| № | 2962580 |
|---|---|
| Район | Нижегородский |
| Адрес | наб. Верхне-Волжская, д. 2Б |
| Площадь | 803,8 м² |
| Этаж / этажность | 1 / 2 |
| Высота потолков | Уточнить |
| Отдельный вход | есть |
| Объект | помещение в жилом доме |
| Назначение | офисное |
Контакты:
Протасов Ярослав
+7-910-884-
Подробное описание:
Ремонт
есть
Телефон
нет
Интернет
нет
Мебель
нет
Дом 2Б на наб. Верхне-Волжская
Почта
Почта России612м
Магазины
Пятерочка418м
Eurospar453м
Сырная лавка576м
Круассан Дорэ583м
Каравай620м
Школы
Гимназия № 1270м
Лицей № 8 им. академика Е.К. Федорова540м
Гимназия № 13691м
Лицей № 40905м
Медицина
Городская поликлиника № 21763м
Поликлиника891м
Детские сады
Детский сад № 9205м
Детский сад № 120752м
Детский сад № 120793м
Детский сад № 20965м
Аренда помещения на наб. Верхне-Волжская, д. 2Б





























