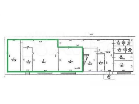
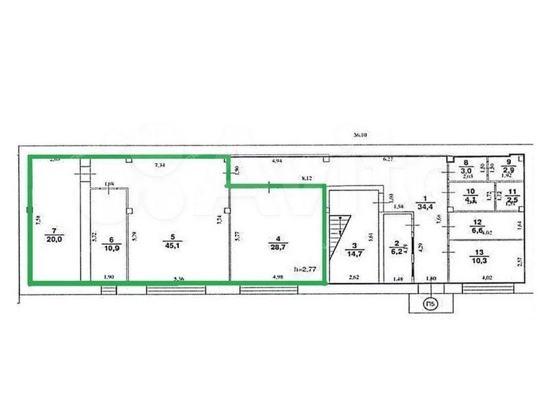
Аренда офиса. Нижегородский район. Нижне-Волжская набережная. Офис общей площадью 104.7 кв.м. Расположен на 1-ом этаже административного здания. Вторая линия домов по Нижне-Волжской набережной. Проезд к зданию через арку. На входе в здание расположен пункт охраны. По планировке офис состоит из трех кабинетов: 28,7 кв.м., 45.1 кв.м., 10,9 кв.м. и помещения без окон 20.0 кв.м., которое используется как склад. В офис сделан хороший ремонт. Все комнаты с большими окнами. Санузел на этаже. Высота потолка 2.77 метра. Сдается от юр.лица. Ставка аренды без НДС. Парковка перед зданием.
Аренда помещения на Нижне-Волжская наб, д.16АНижегородский район, Нижний Новгород
104 700 руб./мес.
| № | 2953606 |
|---|---|
| Район | Нижегородский |
| Адрес | Нижне-Волжская наб, д.16А |
| Площадь | 104,7 м² |
| Назначение | офисное |
Контакты:
Бунаков Алексей т
+7-915-959-
Подробное описание:
Нижегородский район на карте
























