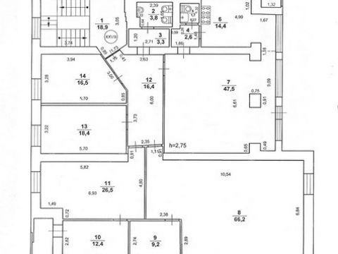
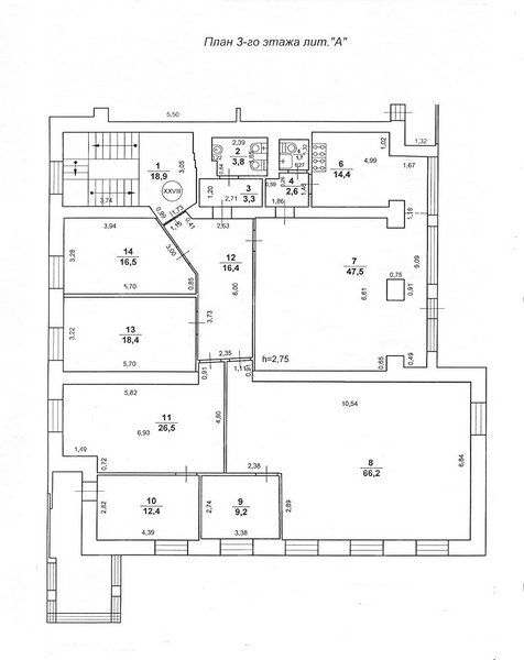
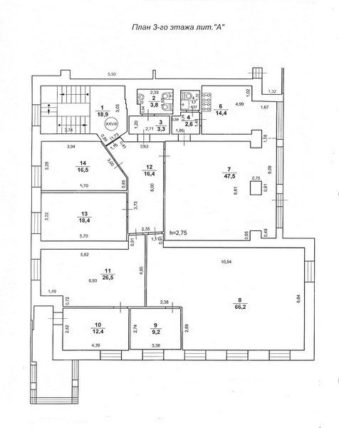
Аренда офиса. Нижний Новгород. Нижегородский район. Улица Ошарская. Офис общей площадью 257.8 кв.м. Расположен на 3-ем этаже. По планировке офис занимает целый этаж. Отдельный блок. Доступ по магнитным ключам. В офисе семь кабинетов, два санузла и небольшой балкон. Хороший офисный ремонт. Есть разводка компьютерной сети. Установлены кондиционеры. Офис сдается от юридического лица. УСН. НДС 5%. Дополнительно оплачиваются коммунальные платежи. Шаговая доступность от офиса до остановки общественного транспорта на улице Варварская, до площади Минина и Пожарского. Рядом с офисом находится Сбер Банк. Недалеко находятся продуктовые магазины и места общественного питания.
Аренда помещения на Ошарская ул., д.14Нижегородский район, Нижний Новгород
232 020 руб./мес.
| № | 2968130 |
|---|---|
| Район | Нижегородский |
| Адрес | Ошарская ул., д.14 |
| Площадь | 257,8 м² |
| Назначение | офисное |
Контакты:
Бунаков Алексей т
+7-915-959-
Подробное описание:
Нижегородский район на карте
















































