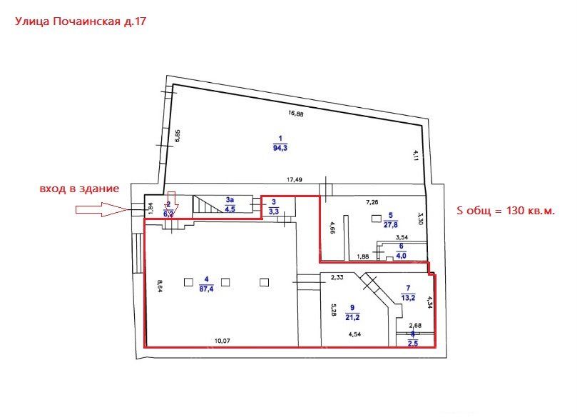
Аренда помещения. Нижний Новгород. Нижегороский район. Улица Почаинская. Помещение общей площадью 130 кв.м. Расположено на 1-ом этаже административного здания. Отдельный блок со своим санузлом. По планировке состоит из большого зала 87.4 кв.м., помещения 21.2, подсобного помещения и санузла. Высокийй потолок. Есть вентиляция. Сдается от юридического лица. НДС 5%. Дополнительно оплачиваются коммунальные платежи и НДС 5%. . Перед входом можно арендовать парковочные места.
Аренда помещения на Почаинская ул., д.17Нижегородский район, Нижний Новгород
109 200 руб./мес.
| № | 2960710 |
|---|---|
| Район | Нижегородский |
| Адрес | Почаинская ул., д.17 |
| Площадь | 130 м² |
| Назначение | офисное |
Контакты:
Бунаков Алексей т
+7-915-959-
Подробное описание:
Нижегородский район на карте





























