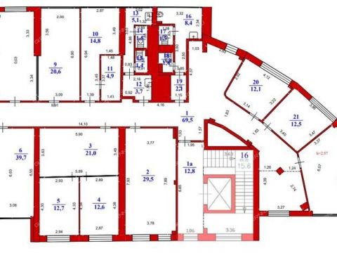
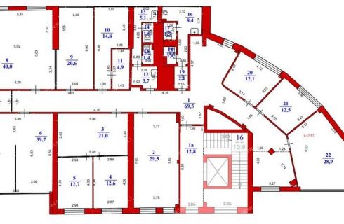
Сдаю в аренду офисный блок - 383 м2 на ул.Провиантской. Помещение состоит и нескольких отдельных кабинетов, холло,с ресепшеном, подсобок и с/узлов. Отдельный вход на этаже, лифт, ночная охрана, пожарно-охранная сигнализация, мокрые точки. Несколько интернет-провайдеров в здании, стихийная парковка возле здания и рядом с соседними домами. Коммунальные платежи, НДС 5%+ к цене.
Аренда помещения на Провиантская ул, д.47Нижегородский район, Нижний Новгород
383 400 руб./мес.
| № | 2967593 |
|---|---|
| Район | Нижегородский |
| Адрес | Провиантская ул, д.47 |
| Площадь | 383,4 м² |
| Назначение | офисное |
Контакты:
Ирина Касаткина т
+7-915-959-
Подробное описание:
Нижегородский район на карте







