Сдаётся в аренду уникальное помещение общей площадью 230 кв. м. на цокольном и первом этажах. Идеально подойдёт для головного офиса компании на 25-40 сотрудников.
Планировка и преимущества:
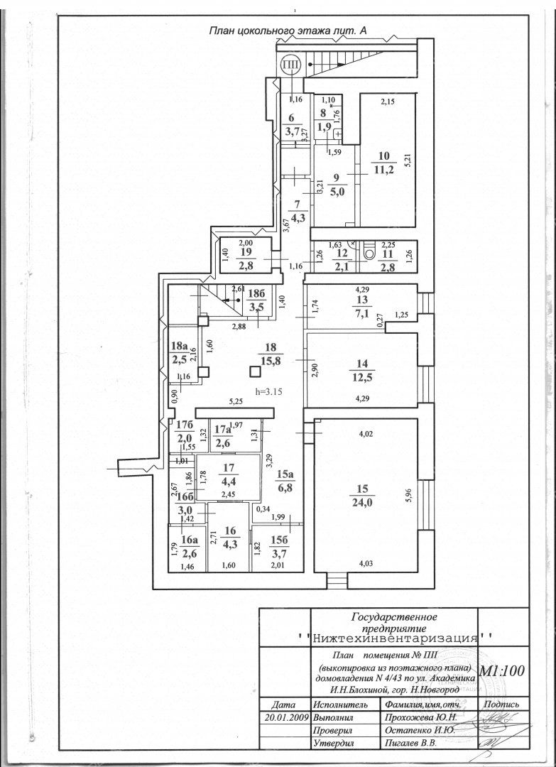
· Два этажа: Цокольный и 1-й этаж, соединенные внутренней лестницей.
· Два отдельных входа с улицы — максимальная автономность и удобство для сотрудников и клиентов.
· Готовая инфраструктура: Кассовый узел с надежной сейфовой дверью и серверная комната в цоколе.
· 12 кабинетов: Пространство легко зонируется под отделы.
· Цокольный этаж: 8 кабинетов (идеально под склады, архивы, call-центр)санузел с душевой.
· Первый этаж: 4 светлых кабинета, включая просторный кабинет директора с собственной приемной и санузел.
Ключевые выгоды для арендатора:
· Не нужно тратиться на дорогой ремонт и установку сейфовой комнаты.
· Готовая IT-инфраструктура (серверная).
· Разделение на "шумные" и "тихие" зоны на разных этажах.
· Солидный адрес и презентабельная зона для руководства на первом этаже.
Помещение обладает большим потенциалом. Отличная возможность организовать рабочее пространство "под ключ" без лишних затрат.
Готовы сдать поэтажно и по отдельным площадям.
📍 Адрес: ул. Академика Блохиной, 4/43.
📏Площадь: 230 кв. м. 💲Цена 800₽ за 1кв.м.+ Коммунальные платежи по счетчикам
Звоните, чтобы договориться о просмотре!
Аренда помещения на ул. Академика Блохиной, д. 4Нижегородский район, Нижний Новгород
184 000 руб./мес.
| № | 2961156 |
|---|---|
| Район | Нижегородский |
| Адрес | ул. Академика Блохиной, д. 4 |
| Площадь | 230 м² |
| Год постройки | 2004 |
| Объект | помещение в жилом доме |
Контакты:
Наталия Вениаминовна
+7-929-053-
Подробное описание:
Ремонт
есть
Интернет
есть
улица Академика Блохиной на карте





























