Арт. 127672453
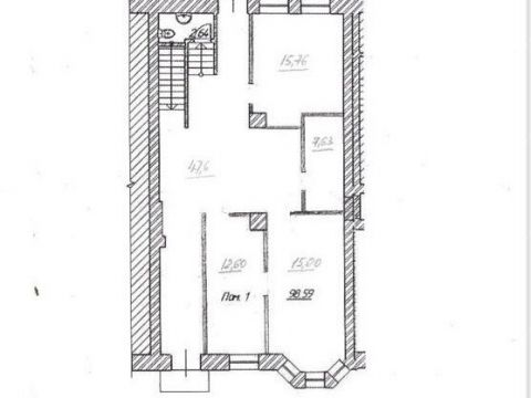
100 кв м расположенно на первом этаже, 70 кв м подвал первая линия;2 входа 70 кВтширокий презентабельный фасад;интенсивный пешеходный и автомобильный трафики;высота потолков 3 м.;выделенное место под рекламную конструкцию;парковочная зона.возможна перепланировка
В непосредственной близости с помещением находится остановка общественного транспорта Оперный театр, сквер 1905 года, площадь Свободы.
Подходит под любой вид деятельности и виды услуг (офисное, банковское или
торговое помещение формата street retail).
Назначение: торговые площади (магазины у дома)












