Арт. 116500013
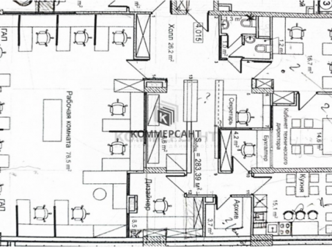
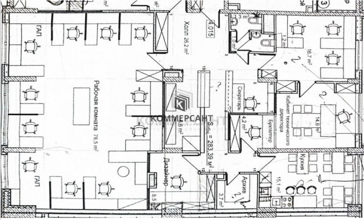
Просторный офис в центре Нижнего Новгорода, с видом на парк Пушкина, вход со двора, два лифта на этаж. Частично меблирован, расположен на втором этаже жилого дома. Два с/у, кухня, кабинеты руководителей, большой кабинет около 70 кв.м. для основной массы сотрудников, серверная, небольшой склад, балкон. Все кабинеты снабжены кондиционерами, на окнах установлены электро-рольставни.
В ближайшем окружении расположена вся необходимая инфраструктура для комфортной и продуктивной деятельности компании - остановка о/т, кафе, парк, множество смежных коммерческих структур.
Идеально под IT-компанию, бухгалтерию, либо другую сферу, не связанную с посещением клиентов. По статусу - жилье, но всегда использовался как офис.
В стоимость аренды входят коммунальные платежи, кроме э/э.
Аренда помещения на ул. Белинского, д. 66Нижегородский район, Нижний Новгород
170 000 руб./мес.
| № | 2961952 |
|---|---|
| Район | Нижегородский |
| Адрес | ул. Белинского, д. 66 |
| Площадь | 177 м² |
| Этаж / этажность | 2 / 17 |
| Высота потолков | 3 м |
| Отдельный вход | нет |
| Объект | помещение в жилом доме |
| Назначение | офисное |
Контакты:
Коновалов Сергей
+7-902-300-
Подробное описание:
Ремонт
есть
Телефон
нет
Интернет
нет
Мебель
нет
Дом 66 на ул. Белинского
Почта
Почта России725м
Почта России753м
Магазины
Пятерочка244м
Магнит284м
Магнит311м
Spar349м
Бристоль369м
Школы
Школа № 19153м
Школа № 18350м
Лицей № 40505м
Школа № 29697м
Школа № 14 им. В.Г. Короленко722м
Медицина
Поликлиника № 31292м
Поликлиника № 31292м
Детская городская поликлиника № 39 г. Нижнего Новгорода799м
Детские сады
Детский сад № 18127м
Детский сад № 473410м
Детский сад № 226505м
Детский сад № 265560м
Детский сад № 252688м
Аренда помещения на ул. Белинского, д. 66















