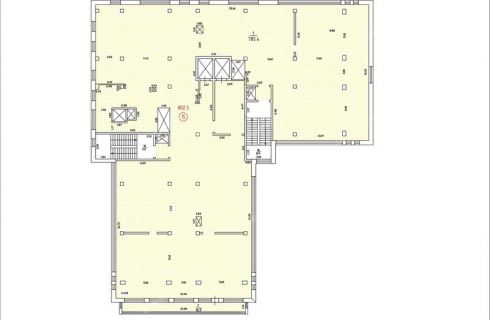
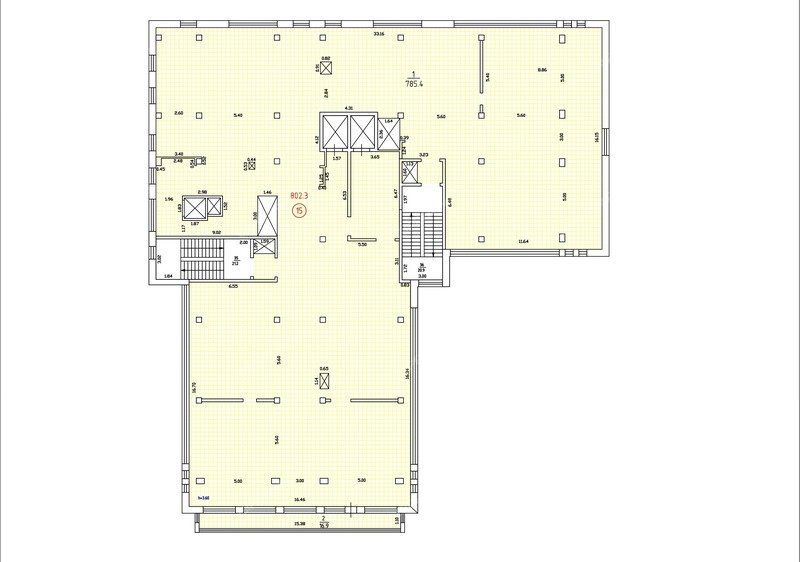
Предлагаем в аренду современный офис/этаж 802,3 м2, планировка смешанного типа, 7 этаж, Бизнес-центр, ул. Родионова, напротив ТРЦ Фантастика. Охраняемая территория. Доступ 24/7. На подземной парковке предоставляется 2-3 места для руководителей, для сотрудников - парковка ТРЦ Фантастика и прилегающая территория.
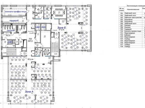
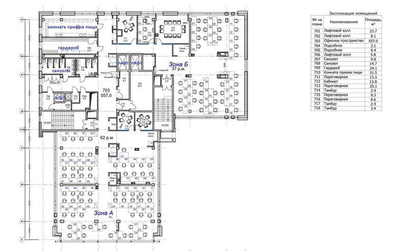
Планировка (см. схему): 2 большие открытые зоны на 100 сотрудников, 5 кабинетов/ переговорных, комната приема пищи, гардеробная, санузлы. Высота потолка 4м. Большие витражные окна. В помещении и здании выполнен современный ремонт, 3 скоростных лифта, на этаже есть терраса.
В здании есть все необходимые системы комфорта и безопасности. Электрические мощности до 2-х МВт на здание, два независимых источника питания по 1 и 2 категории.
Собственная управляющая компания, предоставляющая услуги по содержанию, ремонту и охране Центра, услуги клининга, техническое обслуживание систем.
Отличное месторасположение: развитая инфраструктура (ТРЦ Фантастика: магазины, общепит, фитнес и т.д.), транспортная доступность для всех видов транспорта, остановка общественного транспорта около здания, до Сенной площади (станция метро 2027 год) -10 минут.
Арендная плата: 960 000,0 рублей/месяц, компенсация коммунальных и эксплуатационных расходов согласно счетчикам. ОСН, НДС 22%. Срок передачи помещения в аренду - 01.06.2026 года. Возможна продажа мебели и техники, находящейся в офисе.
Для перспективного арендатора возможны индивидуальные условия аренды.
Аренда помещения на ул. Родионова, д. 190дНижегородский район, Нижний Новгород
962 760 руб./мес.
| № | 2969385 |
|---|---|
| Район | Нижегородский |
| Адрес | ул. Родионова, д. 190д |
| Площадь | 802,3 м² |
| Объект | помещение в нежилом здании |
| Назначение | офисное |
Контакты:
Ирина т
+7-906-352-
Подробное описание:
Дом д. 190д на ул. Родионова

















