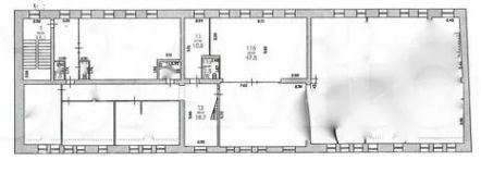
Сдаю в аренду офис 60 м2 на ул.Рождественская. 2 кабинета с окнами: 47 м2+10 м2 и с/у. Качественный ремонт. Большой светлый кабинет 47 м2, с 4-мя окнами и кондиционером, высокие потолки, маленький 10 м2 тоже с окном, можно использовать под кухню и т.п.. Свой большой современный с/у. 3 этаж административного здания, видеонаблюдение. Своя парковка, предоставляется 1 парковочное место. Вход в здание со двора. Все платежи вошли, кроме эл/эн, интернета и уборки внутри, от физ.лица, НДФЛ входит в стоимость аренды. Небольшой торг возможен. От собственника, без комиссии !
Аренда помещения на Рождественская ул, д.36Нижегородский район, Нижний Новгород
60 000 руб./мес.
| № | 2969944 |
|---|---|
| Район | Нижегородский |
| Адрес | Рождественская ул, д.36 |
| Площадь | 60 м² |
| Назначение | офисное |
Контакты:
Ирина Касаткина т
+7-915-959-
Подробное описание:
Нижегородский район на карте














