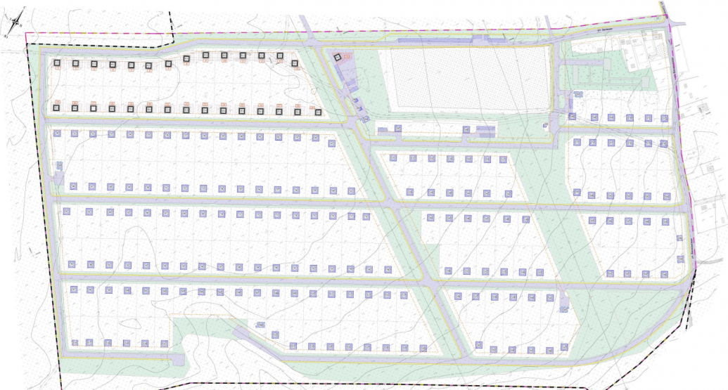
Новый микрорайон из 195 частных домов намерены построить в Кстовском районе к 2036 году. Он разместится в западной части деревни Подлесово. Коттеджный поселок будет предназначен для многодетных семей, его разделят на пять кварталов. Изменения в проект планировки и межевания территории под будущее строительство утверждены нижегородским Минградом 16 декабря.
Проект планировки для территории в 41,1 гектара разработан Научно-производственным предприятием «Инженер» по заказу администрации Кстовского района. Документацию уже утверждали в 2024 году, но сейчас в нее внесли корректировки. В частности, указан срок строительства микрорайона и изменен функционал одного здания, которое разместится возле кладбища. Ранее там хотели открыть заведение общепита, теперь — похоронное бюро.
Частные дома построят одно- и двухэтажными площадью 198 «квадратов». Одноэтажное похоронное бюро будет насчитывать 450 квадратных метров. Также в микрорайоне разместятся два магазина и предприятие бытового обслуживания. По территории продолжат главную дорогу протяженностью 1,8 км, второстепенные дороги в 3,7 км, тротуары и велодорожки. Здесь построят локальные очистные сооружения, обустроят парковки, детские и спортивные площадки, а также благоустроят сквер.
Напомним, в Кстовском округе хотят построить еще несколько микрорайонов ИЖС. Например, 385 частных домов, детсад и девять магазинов планируется возвести в юго-восточной части деревни Опалихи. Еще 116 домов собираются разместить к северо-востоку от деревни Лапшлей, 335 домов и детский сад — в Караулово, 51 — к северу от деревни Карабатово.










