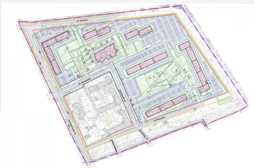
Шесть домов высотой до 12 этажей и новый детский сад появятся в Канавинском районе до конца 2032 года. Их возведут в границах улиц Осипенко, Электровозной и Ракетной. Проект планировки и межевания этой территории разработан компанией «Архивариус» по заказу мэрии Нижнего Новгорода. Он утвержден приказом регионального Минграда от 10 апреля.
Проект подготовлен для участка в 16,74 гектара. Его освоение разделено на пять очередей, включающих поэтапный снос старого фонда, возведение новостроек и благоустройство. Сначала, до конца 2028 года, должны быть расселены и демонтированы дома № 21, 23, 25, 27, 29 по улице Знаменской. В этот же срок планируется построить две 10-этажки вблизи Сортировочного канала, отремонтировать дороги на улицах Знаменской и Осипенко.
Затем, до конца 2029 года, в центре будущего квартала возведут трехэтажный детсад. Он сможет принять до 220 воспитанников. Третья очередь предусматривает реконструкцию дорог на улицах Осипенко, Электровозной, Знаменской и Ракетной.
На следующем этапе — до конца 2030 года — будут снесены дома № 2, 23, 24, 24А, 26 и производственное здание № 20 на улице Осипенко, а также дома № 12, 13, 14 на Касимовской. Освободившуюся площадку до конца 2031 года займет еще одна 10-этажная новостройка.
Последняя очередь включает расселение и снос домов № 17, 19, 31 на улице Знаменской, № 4, 6, 8, 10 на Электровозной, № 2, 4, 6, 8 и административного здания № 2В на Ракетной. Их демонтируют до 2032 года. Последними — до 2033 года — в квартале появятся три многоквартирных дома: два — десятиэтажных, один — в 10–12 этажей. Под двумя зданиями разместятся парковки на 135 и 90 мест.
В нижегорордском Депстрое нам рассказали, что два из шести новых домов будут муниципальными, то есть предназначенными для расселения аварийного фонда. Они расположатся на незастроенных участках ближе к Сортировочному каналу. Остальные четыре дома предусмотрены проектом в рамках перспективного развития территории. Потребность в учебных местах будет обеспечивается за границами площадки — за счет строительства нового корпуса школы № 167 на 450 мест по улице Электровозной.
Ранее мы писали, что еще две новостройки для расселения построят на улице Зеленодольской в Канавине. Рядом с ними появится детсад.










